Verlengde Meeuwerderweg 71
9723 ZM GRONINGEN
€ 350.000 k.k.
In het verlengde van de gezellige Oosterpoortbuurt gelegen 3-kamerappartement met balkon, berging en parkeerplaats in de parkeerkelder.
Het appartement bevindt zich op een schitterende locatie, met uitzicht over de stad Groningen en aan het Zuiderplantsoen. Vanuit een van de slaapkamers geniet je van het uitzicht op de Martinitoren. Gelegen tussen de Oosterpoortwijk en het Europapark op slechts 7 minuten fietsen van het stadscentrum. Het bus- en treinstation liggen op 6 minuten loopafstand en binnen enkele minuten ben je met de auto op de ringweg. Alle voorzieningen zijn dus binnen handbereik!
Voor deze woning is nog geen aardbeving schade en subsidie aangevraagd!
INDELING:
Begane grond:
Afgesloten portiek met intercom, trappenhuis en lift. Tevens toegang tot de parkeergarage en berging.
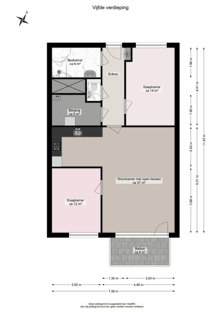
Vijfde verdieping:
Ruime entree met hal, toegang vanuit de hal naar een slaapkamer (circa 14m²), badkamer (circa 5m²) voorzien van douche en wastafel en separaat toilet. Lichte woonkamer van circa 29m² met open keuken voorzien van inbouwapparatuur, circa 9m². Vanuit de woonkamer toegang tot de ruime slaapkamer van circa 15m². Daarnaast biedt de hal de mogelijkheid om de inpandige berging te bereiken. De inpandige berging is circa 6m² groot en voorzien van de cv-opstelling en warmte-terugwin-systeem.
Bij het appartement hoort een parkeerplaats en berging in de ondergelegen parkeergarage.
INFO
- bouwjaar 2010;
- eigen parkeerplaats en berging;
- uitstekende locatie nabij het Zuiderplantsoen;
- complex met lift en binnentuin;
- energielabel A;
- actieve Vve, bijdrage €157,29 p/mnd;
- geen aardbeving schade aangevraagd;
- subsidie waardvermeerdering & verduurzaming en verbetering nog niet aangevraagd.
Het appartement bevindt zich op een schitterende locatie, met uitzicht over de stad Groningen en aan het Zuiderplantsoen. Vanuit een van de slaapkamers geniet je van het uitzicht op de Martinitoren. Gelegen tussen de Oosterpoortwijk en het Europapark op slechts 7 minuten fietsen van het stadscentrum. Het bus- en treinstation liggen op 6 minuten loopafstand en binnen enkele minuten ben je met de auto op de ringweg. Alle voorzieningen zijn dus binnen handbereik!
Voor deze woning is nog geen aardbeving schade en subsidie aangevraagd!
INDELING:
Begane grond:
Afgesloten portiek met intercom, trappenhuis en lift. Tevens toegang tot de parkeergarage en berging.
Vijfde verdieping:
Ruime entree met hal, toegang vanuit de hal naar een slaapkamer (circa 14m²), badkamer (circa 5m²) voorzien van douche en wastafel en separaat toilet. Lichte woonkamer van circa 29m² met open keuken voorzien van inbouwapparatuur, circa 9m². Vanuit de woonkamer toegang tot de ruime slaapkamer van circa 15m². Daarnaast biedt de hal de mogelijkheid om de inpandige berging te bereiken. De inpandige berging is circa 6m² groot en voorzien van de cv-opstelling en warmte-terugwin-systeem.
Bij het appartement hoort een parkeerplaats en berging in de ondergelegen parkeergarage.
INFO
- bouwjaar 2010;
- eigen parkeerplaats en berging;
- uitstekende locatie nabij het Zuiderplantsoen;
- complex met lift en binnentuin;
- energielabel A;
- actieve Vve, bijdrage €157,29 p/mnd;
- geen aardbeving schade aangevraagd;
- subsidie waardvermeerdering & verduurzaming en verbetering nog niet aangevraagd.
Over dit object
Overdracht
| Status | verkocht |
|---|---|
| Prijs | € 350.000 k.k. |
Bouw
| Bouwjaar | 2010 |
|---|---|
| Bouwvorm | bestaande bouw |
| Type Object | Appartement |
| Hoofdfunctie | Woonruimte |
Indeling
| Woonoppervlakte | 85 m² |
|---|---|
| Woning Inhoud | 255 m³ |
| Kamers | 3 (2 slaapkamers) |
Energie
| Energielabel | A |
|---|
Buurtinformatie:
Groningen (1870 woningen met 3185 inwoners)
Koop woningen
46%
Huur woningen
53%
Leeftijdsopbouw
| Samenstelling Huishoudens | Groningen |
|---|---|
| Eenpersoons | 58% |
| Zonder kinderen | 24% |
| Met kinderen | 18% |
Refresh to make it work.












































