Valreep 29

9732 EG GRONINGEN

€ 199.000 k.k.

Jouw specialist voor dit woningaanbod

Pandomo Makelaars

Pandomo Makelaars

050 853 37 33

In de groene en levendige omgeving van de wijk Lewenborg ligt deze leuke eengezinswoning met zowel een voor- als achtertuin. De woning ligt iets van de straat af, in een kindvriendelijke omgeving met voldoende parkeergelegenheid. De omgeving biedt veel voorzieningen op korte afstand zoals een winkelcentrum, sportcentrum Kardinge, recreatieplas "het Zilvermeer" en scholen etc. De Groninger binnenstad op slechts 15 minuten fietsafstand. Een ideale starterswoning of voor jonge gezinnen.

Indeling:

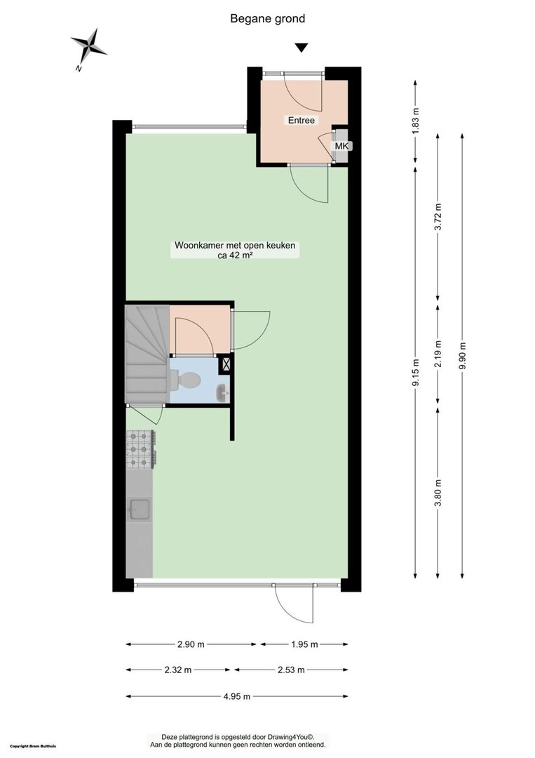
Begane grond:
Entree, hal, woonkamer circa 42m² met laminaatvloer en aangrenzend de open keuken met nette eenvoudige keukeninrichting, trapkast en deur naar de achtertuin met stenen berging en achterom. In de tussenhal bevindt zich het toilet en de trapopgang naar de verdieping.

Verdieping:
Overloop, 3 slaapkamers (5, 10 en 14m²), ruime badkamer voorzien van tweede toilet, ligbad, douche en wastafel, berging annex stookruimte met de wasmachine aansluiting, cv-ketel en bergruimte.

Tuin:
Voortuin circa 48m².
Achtertuin circa 36m² met stenen berging (6m²) en achterom.

Bijzonderheden:
Verwarming d.m.v. cv-combiketel (Intergas bj. 2020);
Grotendeels voorzien van dubbel glas;
Energielabel C;
Nieuwe dakbedekking in 2021 met isolatie.

Over dit object

Overdracht
Statusverkocht
Prijs€ 199.000 k.k.
Bouw
Bouwjaar1974
Bouwvormbestaande bouw
Type ObjectWoonhuis
Indeling
Woonoppervlakte96 m²
Perceeloppervlakte137 m²
Woning Inhoud321 m³
Kamers4 (3 slaapkamers)
Energie
EnergielabelC

Geïnteresseerd?
Vraag een hypotheek gesprek aan!

Hypotheek gesprek aanvragen
  • Eerlijk en onafhankelijk advies

  • Persoonlijke benadering en service

  • Direct inzicht in uw mogelijkheden

€ 199.000 k.k.

Buurtinformatie:
Groningen (1475 woningen met 3145 inwoners)

Koop woningen
49%
Huur woningen
51%
Leeftijdsopbouw
0 - 14 jaar
15 - 24 jaar
25 - 44 jaar
45 - 64 jaar
65+ jaar
Samenstelling HuishoudensGroningen
Eenpersoons39%
Zonder kinderen23%
Met kinderen38%
Refresh to make it work.
Terug naar zoekresultaten

Jouw specialist voor dit woningaanbod

Pandomo Makelaars

Pandomo Makelaars

050 853 37 33