Slachthuisstraat 45

9713 MB GRONINGEN

€ 229.000 k.k.

Jouw specialist voor dit woningaanbod

Pandomo Makelaars

Pandomo Makelaars

050 853 37 33

In gezellige wijk, centraal nabij het centrum van de stad Groningen en het UMCG gelegen ruime, goed onderhouden benedenwoning met heerlijke tuin! Deze leuke woning heeft rondom kunststof kozijnen en drie slaapkamers.

Indeling
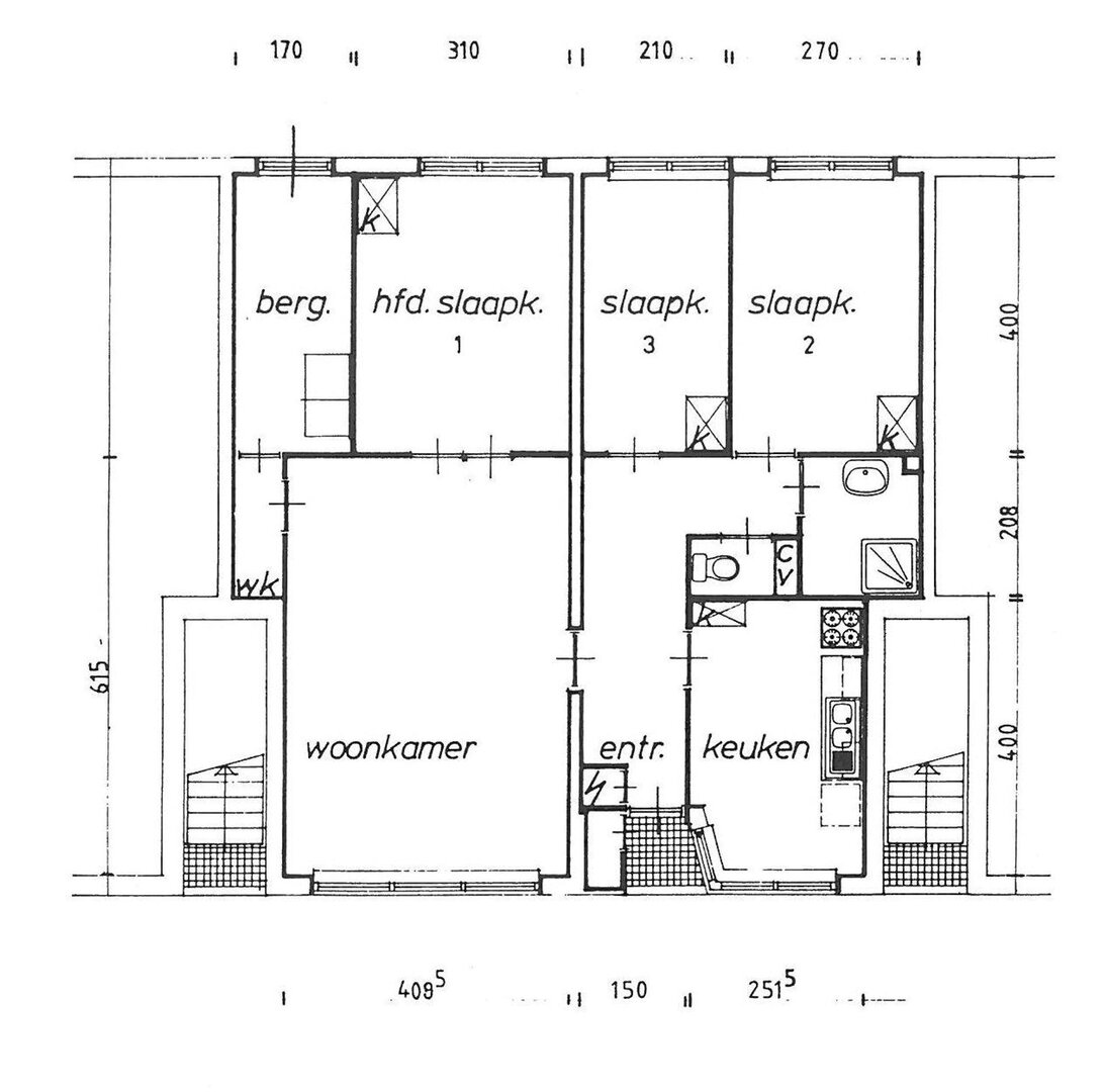
entree, ruime hal, lichte woonkamer van ca. 25 m² met vaste kast, openslaande deuren naar de eerste slaapkamer van ca. 12m², deze heeft een deur naar de ruime achtertuin, dichte keuken van ca. 10 m², badkamer met douche en wastafelmeubel, twee slaapkamers van resp. ca. 8 en 11m², toilet, inpandige berging van ca. 7 m² met wasmachine-aansluiting.

De royale tuin van ca. 50m² is volledig bestraat en heeft een achterom.

Info
- woonoppervlakte ca. 90m²;
- kunststofkozijnen met HR++ glas;
- goed onderhouden;
- ruime tuin;
- parkeren met vergunning in de straat;
- actieve VVE (bijdrage €64,34 p/mnd);
- CV verwarmd middels Nefit Proline NXT CW3 bj. 2019;
- projectnotaris van toepassing (keuze uit 4);
- de woning dient te worden gebruikt voor eigen bewoning door koper of voor bewoning van een eerstegraads familielid (verhuur niet toegestaan).

Over dit object

Overdracht
Statusverkocht
Prijs€ 229.000 k.k.
Bouw
Bouwjaar1988
Bouwvormbestaande bouw
Type ObjectAppartement
Indeling
Woonoppervlakte90 m²
Woning Inhoud270 m³
Kamers4 (3 slaapkamers)
Energie
EnergielabelC

Geïnteresseerd?
Vraag een hypotheek gesprek aan!

Hypotheek gesprek aanvragen
  • Eerlijk en onafhankelijk advies

  • Persoonlijke benadering en service

  • Direct inzicht in uw mogelijkheden

€ 229.000 k.k.

Buurtinformatie:
Groningen (3945 woningen met 5470 inwoners)

Koop woningen
35%
Huur woningen
64%
Leeftijdsopbouw
0 - 14 jaar
15 - 24 jaar
25 - 44 jaar
45 - 64 jaar
65+ jaar
Samenstelling HuishoudensGroningen
Eenpersoons74%
Zonder kinderen18%
Met kinderen9%
Refresh to make it work.
Terug naar zoekresultaten

Jouw specialist voor dit woningaanbod

Pandomo Makelaars

Pandomo Makelaars

050 853 37 33