Siriusstraat 58

9742 KX GRONINGEN

€ 215.000 k.k.

Jouw specialist voor dit woningaanbod

Pandomo Makelaars

Pandomo Makelaars

050 853 37 33

Gelegen in woonwijk Paddepoel ruime eengezinswoning met 4 slaapkamers. De onderhoudsarme achtertuin met vrijstaande berging is gelegen op het westen. De woning ligt in een kindervriendelijke buurt met voorzieningen en winkelcentrum "Paddepoel" op loopafstand. Het stadscentrum ligt op 10 minuten fietsen. Daarnaast is de Ringweg makkelijk te bereiken en is er een goede busverbinding. Ideale starterswoning!


Indeling
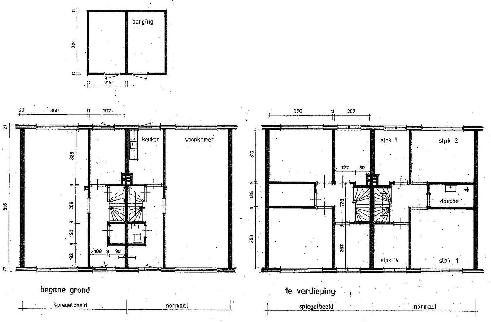
Begane grond
Entree, hal met meterkast, toilet met fontein, trap-/provisiekast, doorzonwoonkamer van circa 29m², separate keuken in lichte kleurstelling, deur naar achtertuin van circa 50m², gelegen op het westen met achterom, vrijstaande stenen berging.

Eerste verdieping
Overloop, 4 slaapkamers van resp. circa 5, 6, 11 en 13m², badkamer voorzien van douche en wastafel.

Tweede verdieping
Via een vlizotrap te bereiken vliering met veel bergruimte en opstelling van de cv-combiketel.


Info
- Gehele woning voorzien van kunststof kozijnen met dubbele beglazing;
- Vrijstaande stenen berging met elektra;
- Onderhoudsarme tuin;
- Ligging in een kindvriendelijke woonomgeving met diverse voorzieningen op loopafstand;
- projectnotaris van toepassing (keuze uit 4);
- de woning dient te worden gebruikt voor eigen bewoning door koper of voor bewoning van een eerstegraads familielid.

Over dit object

Overdracht
Statusverkocht
Prijs€ 215.000 k.k.
Bouw
Bouwjaar1967
Bouwvormbestaande bouw
Type ObjectWoonhuis
Indeling
Woonoppervlakte94 m²
Perceeloppervlakte210 m²
Woning Inhoud340 m³
Kamers5 (4 slaapkamers)
Energie
EnergielabelC

Geïnteresseerd?
Vraag een hypotheek gesprek aan!

Hypotheek gesprek aanvragen
  • Eerlijk en onafhankelijk advies

  • Persoonlijke benadering en service

  • Direct inzicht in uw mogelijkheden

€ 215.000 k.k.

Buurtinformatie:
Groningen (2140 woningen met 4215 inwoners)

Koop woningen
24%
Huur woningen
75%
Leeftijdsopbouw
0 - 14 jaar
15 - 24 jaar
25 - 44 jaar
45 - 64 jaar
65+ jaar
Samenstelling HuishoudensGroningen
Eenpersoons51%
Zonder kinderen21%
Met kinderen28%
Refresh to make it work.
Terug naar zoekresultaten

Jouw specialist voor dit woningaanbod

Pandomo Makelaars

Pandomo Makelaars

050 853 37 33