Rijksstraatweg 115
9752 BA HAREN GN
€ 819.000 v.o.n.
HUYS DE HAAR: de bouw is gestart!
Welkom in Huys de Haar, een prachtige appartementenvilla met ondergelegen parkeergarage en rondom een groen ingerichte parktuin. Huys de Haar ligt dichtbij het centrum aan de statige Rijksstraatweg in Haren. Een locatie waar iedereen wel wil wonen; omringd door fraaie landhuizen en villa’s uit de vorige eeuw. Ja, hier kom je thuis!
De villa bestaat uit de begane grond en drie verdiepingen, op de bovenste verdieping bevinden zich de 3 penthouses met extra royale dakterrassen. Vanuit alle appartementen heb je zicht op de sfeervolle parktuin van maar liefst 1200 m². Maar de groene inrichting met bomen, heesters, grassen, slingerende wandelpaden en bankjes biedt je niet alleen een prachtig uitzicht, hier kun je ook heerlijk neerstrijken met een boek in de zon. Of je kletst even gezellig bij met je buren: ook daarvoor leent de tuin zich uitstekend.
Huys de Haar ligt schuin tegenover het complete winkelcentrum van Haren. Hier vindt u alle winkels voor uw dagelijkse boodschappen, maar ook stijlvolle speciaalzaken en gezellige restaurants en terrassen. Achter de tuin van Huys de Haar ligt een groot park, het Hendrik de Vries Plantsoen, wat samen met de talrijke bomen in de straten rondom zorgt voor een prachtige natuurlijke omgeving.
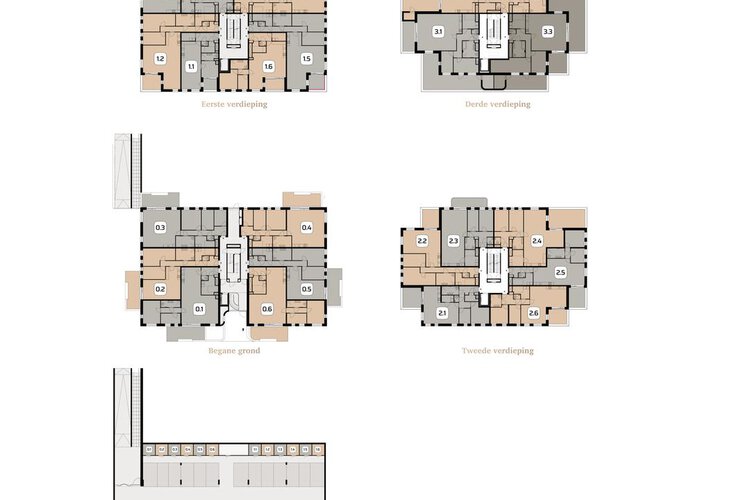
DE WONINGEN
De moderne appartementenvilla beschikt over 21 luxe twee-, drie- en vierkamer appartementen. Ieder appartement heeft een eigen terras, balkon of loggia, bereikbaar vanuit de woonkamer via een royale schuifpui. De villa bestaat uit de begane grond en drie verdiepingen met op de bovenste etage de penthouses met extra royale dakterrassen. De indeling, grootte, ligging en buitenruimte variëren, waardoor elk appartement uniek is. Jij kiest welke het beste bij je past.
De indeling van de appartementen is goed doordacht. Er is alle ruimte voor een fraaie leefkeuken in een (schier-)eiland opstelling met bargedeelte. En uiteraard een riante living voor de eet- en zithoek. De hoge plafonds van minimaal 2,80 meter hoog maken je woning extra ruimtelijk. Die beleving wordt nog eens versterkt door de grote schuifpui naar het terras of balkon.
In de ondergelegen parkeergarage is plaats voor je auto en een ruime privé berging.
BOUWNUMMER 0.6:
- Driekamer appartement
- Groot terras met zicht op de voortuin en de Rijksstraatweg
- Riante living
- Ruimte voor royale keuken met schiereiland en bar
- Plafond circa 3 meter hoog
- Veel daglicht door royale schuifpui en extra raam
- Ruime badkamer met extra grote douche, toilet en tweepersoons wastafelmeubel
- Masterbedroom met ramen aan twee zijdes
- Ruime inpandige berging
Woning specificaties:
Totale oppervlakte: ca. 131 m²
Woonkamer met keuken: ca. 72 m²
Slaapkamer 1: ca. 18 m²
Slaapkamer 2: ca. 9 m²
Badkamer: ca. 6 m²
Bergruimte (in het appartement): ca. 11 m²
Bergruimte (in de stallingsgarage): ca. 6 m²
Buitenruimte terras: ca. 24 m²
HAREN EN OMGEVING
Haren is een mooi, groen dorp. Er heerst een fijne sfeer, het leven is er goed. Geen wonder dat deze ‘parel van het noorden’ erg geliefd is. Daar wil je wonen. De fraaie architectuur, de ruime tuinen en de grote volwassen bomen geven het dorp een natuurlijk cachet. Ook historisch wordt het unieke karakter onderkend; Haren is deels beschermd dorpsgezicht. Tevens is Haren van alle gemakken voorzien; er is een treinstation, een rijk verenigingsleven en een gevarieerd cultuuraanbod. Ook alle zorgvoorzieningen, diverse sportaccommodaties en een binnenzwembad zijn dichtbij.
Huys de Haar ligt schuin tegenover het complete winkelcentrum van Haren. Hier vindt u alle winkels voor uw dagelijkse boodschappen, maar ook stijlvolle speciaalzaken en gezellige restaurants en terrassen. Achter de tuin van Huys de Haar ligt een groot park, het Hendrik de Vries Plantsoen, wat samen met de talrijke bomen in de straten rondom zorgt voor een prachtige natuurlijke omgeving.
DE ARCHITECTUUR
Het uitgangspunt bij het ontwerp was de statige uitstraling van een brede villa, die goed past bij de Rijksstraatweg met zijn monumentale panden en villa’s. Een pand met verschillen in detaillering op de hoeken, zoals je dat vaak bij villa’s ziet. Dat komt bij Huys de Haar bijvoorbeeld tot uiting in de getrapte verdiepingen aan de noordzijde. Ook is er er veel aandacht uitgegaan naar de buitenruimtes, we hebben er bewust voor gekozen om de terrassen en balkons niet boven elkaar te plaatsen. Daardoor ervaar je aan alle kanten het contact met buiten en zie je ook de bomen en de lucht.
Anderzijds hebben we juist de variatie opgezocht door loggia’s te ontwerpen met zicht op de fraaie Rijksstraatweg aan de voorzijde. Daar zit je lekker beschut en schaduwrijk, wat met de warme zomers ook steeds aangenamer is. De balkons met glazen gebogen balustrade zijn als sierlijke elementen toegevoegd aan de achtergevel. Vanwege het glas heb je hier zowel van binnen als van buiten een prachtig uitzicht op de groen ingerichte parktuin.
Sowieso zijn zichtlijnen een belangrijk punt van aandacht geweest bij het ontwerp van het gebouw en de woningen. De derde verdieping heeft een setback, hiermee wordt het gebouw minder massief en past het goed bij de schaal van de Rijksstraatweg. Door Huys de Haar iets terugliggend van de straat te positioneren, krijgt het de grandeur van een villa en er ontstaat ruimte voor de voortuin.
Welkom in Huys de Haar, een prachtige appartementenvilla met ondergelegen parkeergarage en rondom een groen ingerichte parktuin. Huys de Haar ligt dichtbij het centrum aan de statige Rijksstraatweg in Haren. Een locatie waar iedereen wel wil wonen; omringd door fraaie landhuizen en villa’s uit de vorige eeuw. Ja, hier kom je thuis!
De villa bestaat uit de begane grond en drie verdiepingen, op de bovenste verdieping bevinden zich de 3 penthouses met extra royale dakterrassen. Vanuit alle appartementen heb je zicht op de sfeervolle parktuin van maar liefst 1200 m². Maar de groene inrichting met bomen, heesters, grassen, slingerende wandelpaden en bankjes biedt je niet alleen een prachtig uitzicht, hier kun je ook heerlijk neerstrijken met een boek in de zon. Of je kletst even gezellig bij met je buren: ook daarvoor leent de tuin zich uitstekend.
Huys de Haar ligt schuin tegenover het complete winkelcentrum van Haren. Hier vindt u alle winkels voor uw dagelijkse boodschappen, maar ook stijlvolle speciaalzaken en gezellige restaurants en terrassen. Achter de tuin van Huys de Haar ligt een groot park, het Hendrik de Vries Plantsoen, wat samen met de talrijke bomen in de straten rondom zorgt voor een prachtige natuurlijke omgeving.
DE WONINGEN
De moderne appartementenvilla beschikt over 21 luxe twee-, drie- en vierkamer appartementen. Ieder appartement heeft een eigen terras, balkon of loggia, bereikbaar vanuit de woonkamer via een royale schuifpui. De villa bestaat uit de begane grond en drie verdiepingen met op de bovenste etage de penthouses met extra royale dakterrassen. De indeling, grootte, ligging en buitenruimte variëren, waardoor elk appartement uniek is. Jij kiest welke het beste bij je past.
De indeling van de appartementen is goed doordacht. Er is alle ruimte voor een fraaie leefkeuken in een (schier-)eiland opstelling met bargedeelte. En uiteraard een riante living voor de eet- en zithoek. De hoge plafonds van minimaal 2,80 meter hoog maken je woning extra ruimtelijk. Die beleving wordt nog eens versterkt door de grote schuifpui naar het terras of balkon.
In de ondergelegen parkeergarage is plaats voor je auto en een ruime privé berging.
BOUWNUMMER 0.6:
- Driekamer appartement
- Groot terras met zicht op de voortuin en de Rijksstraatweg
- Riante living
- Ruimte voor royale keuken met schiereiland en bar
- Plafond circa 3 meter hoog
- Veel daglicht door royale schuifpui en extra raam
- Ruime badkamer met extra grote douche, toilet en tweepersoons wastafelmeubel
- Masterbedroom met ramen aan twee zijdes
- Ruime inpandige berging
Woning specificaties:
Totale oppervlakte: ca. 131 m²
Woonkamer met keuken: ca. 72 m²
Slaapkamer 1: ca. 18 m²
Slaapkamer 2: ca. 9 m²
Badkamer: ca. 6 m²
Bergruimte (in het appartement): ca. 11 m²
Bergruimte (in de stallingsgarage): ca. 6 m²
Buitenruimte terras: ca. 24 m²
HAREN EN OMGEVING
Haren is een mooi, groen dorp. Er heerst een fijne sfeer, het leven is er goed. Geen wonder dat deze ‘parel van het noorden’ erg geliefd is. Daar wil je wonen. De fraaie architectuur, de ruime tuinen en de grote volwassen bomen geven het dorp een natuurlijk cachet. Ook historisch wordt het unieke karakter onderkend; Haren is deels beschermd dorpsgezicht. Tevens is Haren van alle gemakken voorzien; er is een treinstation, een rijk verenigingsleven en een gevarieerd cultuuraanbod. Ook alle zorgvoorzieningen, diverse sportaccommodaties en een binnenzwembad zijn dichtbij.
Huys de Haar ligt schuin tegenover het complete winkelcentrum van Haren. Hier vindt u alle winkels voor uw dagelijkse boodschappen, maar ook stijlvolle speciaalzaken en gezellige restaurants en terrassen. Achter de tuin van Huys de Haar ligt een groot park, het Hendrik de Vries Plantsoen, wat samen met de talrijke bomen in de straten rondom zorgt voor een prachtige natuurlijke omgeving.
DE ARCHITECTUUR
Het uitgangspunt bij het ontwerp was de statige uitstraling van een brede villa, die goed past bij de Rijksstraatweg met zijn monumentale panden en villa’s. Een pand met verschillen in detaillering op de hoeken, zoals je dat vaak bij villa’s ziet. Dat komt bij Huys de Haar bijvoorbeeld tot uiting in de getrapte verdiepingen aan de noordzijde. Ook is er er veel aandacht uitgegaan naar de buitenruimtes, we hebben er bewust voor gekozen om de terrassen en balkons niet boven elkaar te plaatsen. Daardoor ervaar je aan alle kanten het contact met buiten en zie je ook de bomen en de lucht.
Anderzijds hebben we juist de variatie opgezocht door loggia’s te ontwerpen met zicht op de fraaie Rijksstraatweg aan de voorzijde. Daar zit je lekker beschut en schaduwrijk, wat met de warme zomers ook steeds aangenamer is. De balkons met glazen gebogen balustrade zijn als sierlijke elementen toegevoegd aan de achtergevel. Vanwege het glas heb je hier zowel van binnen als van buiten een prachtig uitzicht op de groen ingerichte parktuin.
Sowieso zijn zichtlijnen een belangrijk punt van aandacht geweest bij het ontwerp van het gebouw en de woningen. De derde verdieping heeft een setback, hiermee wordt het gebouw minder massief en past het goed bij de schaal van de Rijksstraatweg. Door Huys de Haar iets terugliggend van de straat te positioneren, krijgt het de grandeur van een villa en er ontstaat ruimte voor de voortuin.
Over dit object
Overdracht
| Status | onder optie |
|---|---|
| Prijs | € 819.000 v.o.n. |
Bouw
| Bouwjaar | 2025 |
|---|---|
| Bouwvorm | nieuwbouw |
| Type Object | Appartement |
| Hoofdfunctie | Woonruimte |
Indeling
| Woonoppervlakte | 131 m² |
|---|---|
| Woning Inhoud | 445 m³ |
| Kamers | 3 (2 slaapkamers) |
Energie
| Energielabel | A+++ |
|---|
Buurtinformatie:
Haren (4640 woningen met 9175 inwoners)
Koop woningen
65%
Huur woningen
35%
Leeftijdsopbouw
| Samenstelling Huishoudens | Haren |
|---|---|
| Eenpersoons | 44% |
| Zonder kinderen | 32% |
| Met kinderen | 24% |
Refresh to make it work.












