Graaf Adolfstraat 88 b

9717 EK GRONINGEN

€ 235.000 k.k.

Jouw specialist voor dit woningaanbod

Pandomo Makelaars

Pandomo Makelaars

050 853 37 33

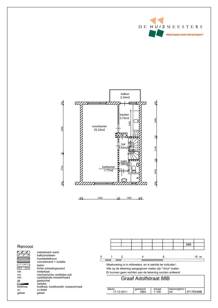
Een jaren twintig bovenwoning in de gewilde Oranjebuurt met een balkon op het zuiden. De woning heeft onderhoudsarme kunststof kozijnen en is gelegen op geringe afstand van het Noorderplantsoen en de Groninger binnenstad.

Indeling
Entree aan de straat: hal en trapopgang, vrijstaande stenen berging;
Eerste verdieping: overloop, ruime doorzon-woonkamer circa 25m², dichte keuken circa 6m² met eenvoudige keukeninrichting en deur naar balkon op het zuiden, badkamer met douche, wastafel en toilet;
Tweede verdieping: ruime overloop met opstelling cv-combiketel, 3 slaapkamers circa 11, 11 en 5m²;
Zolder: eventueel via losse trap te bereiken zolderberging.

Bijzonderheden
-CV-combiketel Intergas HR 2006;
-Voorzien van kunststof kozijnen, gedeeltelijk voorzien van isolatieglas;
-Bijdrage VvE €101,34 per maand;
-Projectnotaris van toepassing (Lambeck Harms);
-Kamersgewijze bewoning is niet toegestaan;
-Deze woning kan alleen worden verkocht aan natuurlijke personen die de eerste twee jaar na de overdracht de woning zelf gaan bewonen of een familielid uit de eerste graad.

Over dit object

Overdracht
Statusverkocht
Prijs€ 235.000 k.k.
Bouw
Bouwjaar1922
Bouwvormbestaande bouw
Type ObjectAppartement
Indeling
Woonoppervlakte82 m²
Perceeloppervlakte1 m²
Woning Inhoud260 m³
Kamers1 (1 slaapkamers)
Energie
EnergielabelB

Geïnteresseerd?
Vraag een hypotheek gesprek aan!

Hypotheek gesprek aanvragen
  • Eerlijk en onafhankelijk advies

  • Persoonlijke benadering en service

  • Direct inzicht in uw mogelijkheden

€ 235.000 k.k.

Buurtinformatie:
Groningen (4410 woningen met 6750 inwoners)

Koop woningen
49%
Huur woningen
50%
Leeftijdsopbouw
0 - 14 jaar
15 - 24 jaar
25 - 44 jaar
45 - 64 jaar
65+ jaar
Samenstelling HuishoudensGroningen
Eenpersoons66%
Zonder kinderen21%
Met kinderen13%
Refresh to make it work.
Terug naar zoekresultaten

Jouw specialist voor dit woningaanbod

Pandomo Makelaars

Pandomo Makelaars

050 853 37 33