Camphuysenstraat 183

9721 KE GRONINGEN

€ 150.000 k.k.

Jouw specialist voor dit woningaanbod

Pandomo Makelaars

Pandomo Makelaars

050 853 37 33

Starters opgelet: unieke laatste kans!
Gelegen in het volledige verduurzaamde en vernieuwde project aan de Camphuysenstraat 2-kamerappartement op de 1e verdieping met losse berging en eigen balkon.

Wijkvernieuwing
Woningcorporatie De Huismeesters is volop bezig met de Wijkvernieuwing in De Wijert. Herontwikkeling gaat verder dan alleen sloop, nieuwbouw en verbetering van de woningen. In de aanpak zijn kwaliteit, verduurzaming, diversiteit, comfort en leefbaarheid belangrijke doelen geweest.

Woningverbetering en verkoop
Bij de woningverbetering wordt de schil van de complexen gerenoveerd, geïsoleerd en verduurzaamd; met onder andere een nieuw dak met isolatie, muurisolatie, kunststof kozijnen met HR++ glas. Het wooncomfort van deze woningen is daarmee drastisch toegenomen en het energieverbruik sterk verminderd. De complexen hebben aan de buitenkant een frisse uitstraling en zijn erg onderhoudsvriendelijk. Bij dit complex aan de Reviusstraat wordt bij de woningen op de begane grond tuinen toegevoegd (dit wordt nog gerealiseerd en heggen nog aangeplant, zie impressie).

Nieuwbouw
Naast het verduurzamen van de woningen worden er ook diverse blokken met woningen en garageboxen gesloopt en vervangen voor nieuwbouw. Deze nieuwbouw bestaat in ieder geval uit woningen bestemd voor de sociale verhuur en vindt gefaseerd plaats. Met nieuwbouw en verkoop ontstaat een buurt met een diversiteit in de woningsamenstelling.


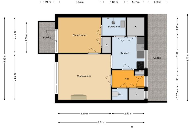
CAMPHUYSENSTRAAT 183 is een 2-kamer appartement gelegen op de verdieping en met zonnig balkon.

INDELING
Begane grond: inpandige stenen berging, trapopgang naar galerij;

Eerste verdieping: entree, hal met meterkast, vaste kast en toilet, rechtdoor de lichte woonkamer, aangrenzend de slaapkamer met vaste kast en deur naar balkon op het zuiden, doorgang naar de eenvoudige badkamer met douche en wastafel, afgesloten keuken met eenvoudige opstelling, berging met HR combi-ketel en opstelplaats voor wasmachine.


Aan de hand van een aantal impressie foto's zijn de mogelijkheden van deze woningen zichtbaar gemaakt. Let op: het betreffen impressiefoto's, woningen kunnen hiervan afwijken.
Maak een afspraak om te komen kijken en we vertellen je alles over deze leuke en leuke woningen en de ontwikkelingen in deze prachtige buurt.

INFO:
- buitenzijde volledig gerenoveerd en geïsoleerd, 2021;
- de woningen zijn verduurzaamd naar minimaal label B;
- verwarmd middels CV HR combiketel;
- actieve VvE, bijdrage €99,84 per maand;
- projectnotaris (Lambeck Harms) van toepassing;
- dit appartement mag alleen worden verkocht aan natuurlijke personen die de woning zelf gaan bewonen, of voor iemand in de eerste graad (bijv. zoon/dochter), deze zelfbewoningsplicht geldt voor de eerste twee jaren na de overdracht.

Over dit object

Overdracht
Statusverkocht
Prijs€ 150.000 k.k.
Bouw
Bouwjaar1961
Bouwvormbestaande bouw
Type ObjectAppartement
Indeling
Woonoppervlakte44 m²
Woning Inhoud130 m³
Kamers2 (1 slaapkamers)
Energie
EnergielabelA

Geïnteresseerd?
Vraag een hypotheek gesprek aan!

Hypotheek gesprek aanvragen
  • Eerlijk en onafhankelijk advies

  • Persoonlijke benadering en service

  • Direct inzicht in uw mogelijkheden

€ 150.000 k.k.

Buurtinformatie:
Groningen (1775 woningen met 2780 inwoners)

Koop woningen
59%
Huur woningen
41%
Leeftijdsopbouw
0 - 14 jaar
15 - 24 jaar
25 - 44 jaar
45 - 64 jaar
65+ jaar
Samenstelling HuishoudensGroningen
Eenpersoons66%
Zonder kinderen20%
Met kinderen15%
Refresh to make it work.
Terug naar zoekresultaten

Jouw specialist voor dit woningaanbod

Pandomo Makelaars

Pandomo Makelaars

050 853 37 33