Barkmolenstraat 31
9723 DA GRONINGEN
€ 450.000 k.k.
Op een fantastische locatie gelegen, aan de populaire Barkmolenstraat, een fraaie gezinswoning met 4 slaapkamers, serre en tuin op het zonnige zuidwesten!
Deze goed onderhouden tussenwoning biedt 4 slaapkamers, een vernieuwde keuken (2022), een uitbouw op de tweede verdieping en een lichte serre. Voor de deur is ruim voldoende parkeergelegenheid en achter de woning ligt een fraai speelveld, ideaal voor kinderen.
Op een uitstekende locatie, op loopafstand van onder andere supermarkten en openbaar vervoer. Het UMCG en de bruisende binnenstad zijn in slechts 5 minuten fietsen te bereiken, en via de nabijgelegen uitvalswegen A28 en A7 ben je snel buiten de stad.
INDELING
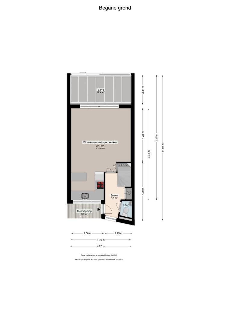
Begane grond:
Entree/hal met meterkast en toilet voorzien van fonteintje. Sfeervolle woonkamer van circa 29 m² voorzien van nette laminaatvloer met moderne open keuken aan de voorzijde, uitgerust met diverse inbouwapparatuur zoals een inductieplaat, afzuigkap, koelkast, vriezer en oven. Via een schuifpui kom je in de lichte serre, die direct toegang geeft tot de achtertuin. Een trapopgang leidt naar de eerste verdieping.
Eerste verdieping:
Overloop met separaat tweede toilet voorzien van fonteintje, drie volwaardige slaapkamers van respectievelijk circa 7, 11 en 12 m². De badkamer beschikt over een inloopdouche, ligbad, wastafel met -meubel en designradiator. Een trapopgang leidt naar de tweede verdieping.
Tweede verdieping:
Ruime overloop met veel opbergruimte, C.V.-opstelling en wasmachine-aansluiting. Royale vierde slaapkamer van circa 21 m².
Tuin:
Verzorgde achtertuin met veel groen, serre, terrasje, fietsenberging en achterom. Dankzij de ligging op het zuidwesten kun je heerlijk genieten van een middag en avondzon.
INFO
- Verzorgde tussenwoning op fantastische locatie;
- Serre op de begane grond;
- Uitbouw op de tweede verdieping;
- 4 slaapkamers;
- Energielabel B;
- Verwarmd d.m.v. C.V.-combiketel (Intergas, bj. 2009);
- Vernieuwde keuken (2022);
- Fietsenberging in achtertuin.
Deze goed onderhouden tussenwoning biedt 4 slaapkamers, een vernieuwde keuken (2022), een uitbouw op de tweede verdieping en een lichte serre. Voor de deur is ruim voldoende parkeergelegenheid en achter de woning ligt een fraai speelveld, ideaal voor kinderen.
Op een uitstekende locatie, op loopafstand van onder andere supermarkten en openbaar vervoer. Het UMCG en de bruisende binnenstad zijn in slechts 5 minuten fietsen te bereiken, en via de nabijgelegen uitvalswegen A28 en A7 ben je snel buiten de stad.
INDELING
Begane grond:
Entree/hal met meterkast en toilet voorzien van fonteintje. Sfeervolle woonkamer van circa 29 m² voorzien van nette laminaatvloer met moderne open keuken aan de voorzijde, uitgerust met diverse inbouwapparatuur zoals een inductieplaat, afzuigkap, koelkast, vriezer en oven. Via een schuifpui kom je in de lichte serre, die direct toegang geeft tot de achtertuin. Een trapopgang leidt naar de eerste verdieping.
Eerste verdieping:
Overloop met separaat tweede toilet voorzien van fonteintje, drie volwaardige slaapkamers van respectievelijk circa 7, 11 en 12 m². De badkamer beschikt over een inloopdouche, ligbad, wastafel met -meubel en designradiator. Een trapopgang leidt naar de tweede verdieping.
Tweede verdieping:
Ruime overloop met veel opbergruimte, C.V.-opstelling en wasmachine-aansluiting. Royale vierde slaapkamer van circa 21 m².
Tuin:
Verzorgde achtertuin met veel groen, serre, terrasje, fietsenberging en achterom. Dankzij de ligging op het zuidwesten kun je heerlijk genieten van een middag en avondzon.
INFO
- Verzorgde tussenwoning op fantastische locatie;
- Serre op de begane grond;
- Uitbouw op de tweede verdieping;
- 4 slaapkamers;
- Energielabel B;
- Verwarmd d.m.v. C.V.-combiketel (Intergas, bj. 2009);
- Vernieuwde keuken (2022);
- Fietsenberging in achtertuin.
Over dit object
Overdracht
| Status | verkocht |
|---|---|
| Prijs | € 450.000 k.k. |
Bouw
| Bouwjaar | 1997 |
|---|---|
| Bouwvorm | bestaande bouw |
| Type Object | Woonhuis |
| Hoofdfunctie | Woonruimte |
Indeling
| Woonoppervlakte | 121 m² |
|---|---|
| Perceeloppervlakte | 115 m² |
| Woning Inhoud | 396 m³ |
| Kamers | 5 (4 slaapkamers) |
Energie
| Energielabel | B |
|---|
Buurtinformatie:
Groningen (1870 woningen met 3185 inwoners)
Koop woningen
46%
Huur woningen
53%
Leeftijdsopbouw
| Samenstelling Huishoudens | Groningen |
|---|---|
| Eenpersoons | 58% |
| Zonder kinderen | 24% |
| Met kinderen | 18% |
Refresh to make it work.













































