Asingastraat 7 a
9716 EK GRONINGEN
€ 195.000 k.k.
Leuke maisonnette op ideale locatie in de Korrewegwijk met energielabel B!
Ben je op zoek naar een fijne plek in de stad waar je jouw eigen stempel op kunt drukken? Deze compacte woning met één slaapkamer, gelegen in de populaire Korrewegwijk, biedt volop mogelijkheden voor de handige starter of creatieve woningzoeker!
De woning ligt aan een levendige straat, midden in de geliefde Korrewegwijk, voorzieningen en ligging ten opzichte van het centrum zijn nabij. Binnen tref je een praktische indeling, met een lichte woonkamer, een gesloten keuken en een ruime slaapkamer op de verdieping. De staat van onderhoud laat ruimte voor verbetering – perfect voor wie het niet erg vindt om de handen uit de mouwen te steken en het huis stap voor stap naar eigen smaak te maken.
INDELING
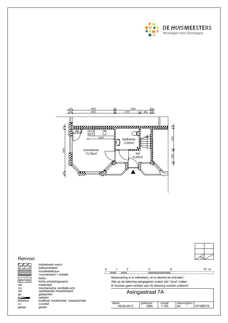
Begane grond:
Entree/ hal (ca. 4m²) met toegang tot de lichte woonkamer met open keuken (ca. 14m²), vanuit de hal heeft u eveneens toegang tot de badkamer (ca. 4m²). De badkamer is voorzien van een wastafel, douche en toilet. Tevens bevind de trapopgang naar de eerste verdieping zich hier.
Eerste verdieping:
Overloop (ca. 8m²) met toegang tot een slaapkamer, circa 14m² groot.
Informatie:
- Bouwjaar 1910;
- Energielabel B;
- Authentieke maisonnette in de Korrewegwijk;
- (Actieve) VvE, maandelijkse bijdrage €84,68;
- Verwarming d.m.v. C.V.-ketel (Remeha Avanta), bouwjaar 2012.
Verkoopvoorwaarden, onder andere:
- Niet-zelfbewoningsclausule;
- Projectnotaris van toepassing;
- Dit appartement mag alleen worden verkocht aan natuurlijke personen die de woning zelf gaan bewonen, of voor iemand in de eerste graad (bijv. zoon/dochter), deze zelfbewoningsplicht geldt voor de eerste vier jaren na de overdracht.
Ben je op zoek naar een fijne plek in de stad waar je jouw eigen stempel op kunt drukken? Deze compacte woning met één slaapkamer, gelegen in de populaire Korrewegwijk, biedt volop mogelijkheden voor de handige starter of creatieve woningzoeker!
De woning ligt aan een levendige straat, midden in de geliefde Korrewegwijk, voorzieningen en ligging ten opzichte van het centrum zijn nabij. Binnen tref je een praktische indeling, met een lichte woonkamer, een gesloten keuken en een ruime slaapkamer op de verdieping. De staat van onderhoud laat ruimte voor verbetering – perfect voor wie het niet erg vindt om de handen uit de mouwen te steken en het huis stap voor stap naar eigen smaak te maken.
INDELING
Begane grond:
Entree/ hal (ca. 4m²) met toegang tot de lichte woonkamer met open keuken (ca. 14m²), vanuit de hal heeft u eveneens toegang tot de badkamer (ca. 4m²). De badkamer is voorzien van een wastafel, douche en toilet. Tevens bevind de trapopgang naar de eerste verdieping zich hier.
Eerste verdieping:
Overloop (ca. 8m²) met toegang tot een slaapkamer, circa 14m² groot.
Informatie:
- Bouwjaar 1910;
- Energielabel B;
- Authentieke maisonnette in de Korrewegwijk;
- (Actieve) VvE, maandelijkse bijdrage €84,68;
- Verwarming d.m.v. C.V.-ketel (Remeha Avanta), bouwjaar 2012.
Verkoopvoorwaarden, onder andere:
- Niet-zelfbewoningsclausule;
- Projectnotaris van toepassing;
- Dit appartement mag alleen worden verkocht aan natuurlijke personen die de woning zelf gaan bewonen, of voor iemand in de eerste graad (bijv. zoon/dochter), deze zelfbewoningsplicht geldt voor de eerste vier jaren na de overdracht.
Over dit object
Overdracht
| Status | verkocht |
|---|---|
| Prijs | € 195.000 k.k. |
Bouw
| Bouwjaar | 1910 |
|---|---|
| Bouwvorm | bestaande bouw |
| Type Object | Appartement |
| Hoofdfunctie | Woonruimte |
Indeling
| Woonoppervlakte | 46 m² |
|---|---|
| Woning Inhoud | 162 m³ |
| Kamers | 3 (1 slaapkamers) |
Energie
| Energielabel | B |
|---|
Buurtinformatie:
Groningen (2270 woningen met 3570 inwoners)
Koop woningen
12%
Huur woningen
87%
Leeftijdsopbouw
| Samenstelling Huishoudens | Groningen |
|---|---|
| Eenpersoons | 63% |
| Zonder kinderen | 19% |
| Met kinderen | 18% |
Refresh to make it work.





















