Amalia van Solmsstraat 44
9717 AP GRONINGEN
€ 275.000 k.k.
Een fijne benedenwoning met tuin op het zuidwesten, twee compacte slaapkamers en een ideale locatie!
De woning beschikt over een lichte woonkamer met praktische indeling naar de slaapkamers en keuken. De afwerking is eenvoudig, maar dat biedt juist ruimte om het geheel naar eigen smaak te moderniseren. Aan de achterzijde ligt de tuin op het zuidwesten: een fijne plek voor de middag- en avondzon.
De twee slaapkamers zijn compact van formaat en geschikt als slaap-, werk- of logeerkamer. Ideaal voor starters, alleenstaanden of stellen die op zoek zijn naar een betaalbare woning met tuin.
De Amalia van Solmsstraat is rustig gelegen, met voorzieningen, openbaar vervoer en uitvalswegen in de directe omgeving. Het centrum van Groningen is eveneens binnen een paar minuten per fiets te bereiken.
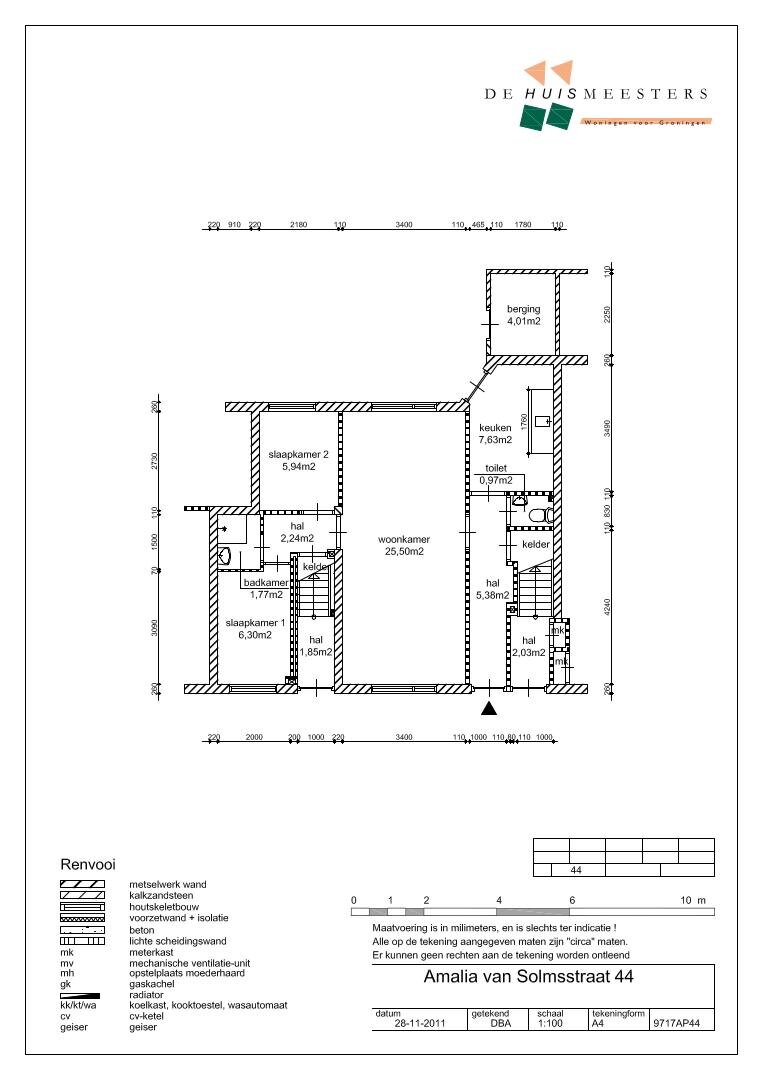
INDELING
Begane grond:
Entree/ hal (ca. 5 m²) met toegang tot de kelder, toilet (ca. 1 m²) en lichte woonkamer (ca. 26m²). De woonkamer biedt vervolgens toegang tot de tussenhal (ca. 2 m²) welke in verbinding staat met twee slaapkamers. Respectievelijk te weten circa 6 m² en 6 m² groot. De dichte keuken (ca. 8 m²) voorzien van eenvoudige keukenopstelling biedt toegang tot de tuin op het zuidwesten.
Informatie:
- Bouwjaar 1922;
- Energielabel B;
- (Actieve) VvE, maandelijkse bijdrage €86,05;
- Verwarming d.m.v. C.V.-ketel (Intergas), bouwjaar 2012.
Verkoopvoorwaarden, onder andere:
- Niet-zelfbewoningsclausule;
- Projectnotaris van toepassing;
- Dit appartement mag alleen worden verkocht aan natuurlijke personen die de woning zelf gaan bewonen, of voor iemand in de eerste graad (bijv. zoon/dochter), deze zelfbewoningsplicht geldt voor de eerste vier jaren na de overdracht.
De woning beschikt over een lichte woonkamer met praktische indeling naar de slaapkamers en keuken. De afwerking is eenvoudig, maar dat biedt juist ruimte om het geheel naar eigen smaak te moderniseren. Aan de achterzijde ligt de tuin op het zuidwesten: een fijne plek voor de middag- en avondzon.
De twee slaapkamers zijn compact van formaat en geschikt als slaap-, werk- of logeerkamer. Ideaal voor starters, alleenstaanden of stellen die op zoek zijn naar een betaalbare woning met tuin.
De Amalia van Solmsstraat is rustig gelegen, met voorzieningen, openbaar vervoer en uitvalswegen in de directe omgeving. Het centrum van Groningen is eveneens binnen een paar minuten per fiets te bereiken.
INDELING
Begane grond:
Entree/ hal (ca. 5 m²) met toegang tot de kelder, toilet (ca. 1 m²) en lichte woonkamer (ca. 26m²). De woonkamer biedt vervolgens toegang tot de tussenhal (ca. 2 m²) welke in verbinding staat met twee slaapkamers. Respectievelijk te weten circa 6 m² en 6 m² groot. De dichte keuken (ca. 8 m²) voorzien van eenvoudige keukenopstelling biedt toegang tot de tuin op het zuidwesten.
Informatie:
- Bouwjaar 1922;
- Energielabel B;
- (Actieve) VvE, maandelijkse bijdrage €86,05;
- Verwarming d.m.v. C.V.-ketel (Intergas), bouwjaar 2012.
Verkoopvoorwaarden, onder andere:
- Niet-zelfbewoningsclausule;
- Projectnotaris van toepassing;
- Dit appartement mag alleen worden verkocht aan natuurlijke personen die de woning zelf gaan bewonen, of voor iemand in de eerste graad (bijv. zoon/dochter), deze zelfbewoningsplicht geldt voor de eerste vier jaren na de overdracht.
Over dit object
Overdracht
| Status | beschikbaar |
|---|---|
| Prijs | € 275.000 k.k. |
Bouw
| Bouwjaar | 1922 |
|---|---|
| Bouwvorm | bestaande bouw |
| Type Object | Appartement |
| Hoofdfunctie | Woonruimte |
Indeling
| Woonoppervlakte | 63 m² |
|---|---|
| Woning Inhoud | 201 m³ |
| Kamers | 3 (2 slaapkamers) |
Energie
| Energielabel | B |
|---|
Buurtinformatie:
Groningen (4410 woningen met 6750 inwoners)
Koop woningen
49%
Huur woningen
50%
Leeftijdsopbouw
| Samenstelling Huishoudens | Groningen |
|---|---|
| Eenpersoons | 66% |
| Zonder kinderen | 21% |
| Met kinderen | 13% |
Refresh to make it work.




























