A. Morostraat 12

9728 SN GRONINGEN

€ 270.000 k.k.

Jouw specialist voor dit woningaanbod

Pandomo Makelaars

Pandomo Makelaars

050 853 37 33

Wilt u genieten van een schitterend uitzicht over het meer?
Op één van de mooiste plekjes van de Hoornsemeerwijk aan het nieuwe 'Meerplan' gelegen 2-kamerappartement met balkon op het zuidwesten en inpandige berging. Deze unieke woning ligt in een kleinschalig complex op de eerste verdieping. Aan de voorzijde vanaf ruim balkon schitterend uitzicht over het meer!

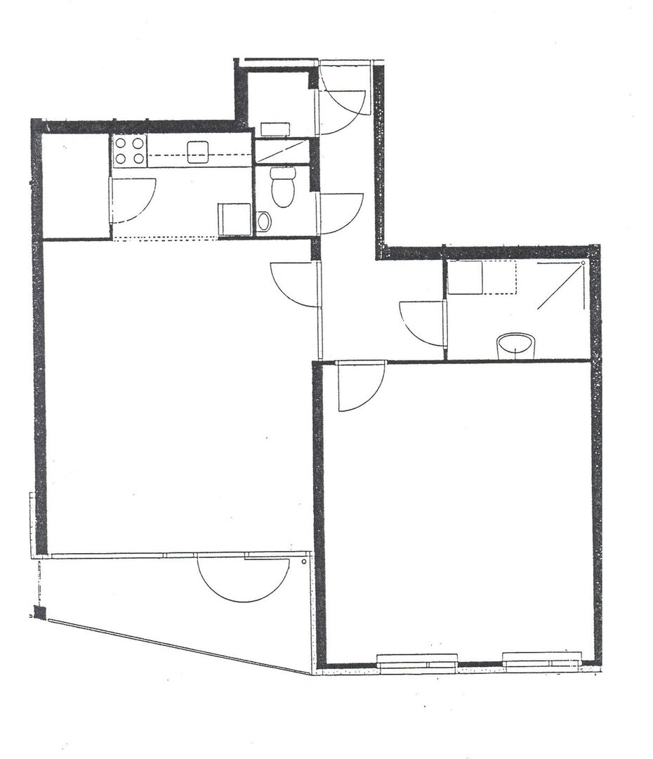
Indeling: entree, hal, toilet en vaste kast, badkamer met douche en wastafel, lichte woonkamer van circa 25 m² met deur naar het terras, halfopen keuken met inloopkast, ruime slaapkamer van circa 24 m² (eventueel te verdelen in twee slaapkamers).

INFO:
- unieke locatie;
- CV verwarmd middels Vaillant 2011;
- bouwjaar 1989;
- gratis parkeren;
- actieve VvE, bijdrage € 151,87 p/mnd;
- projectnotaris van toepassing (keuze uit vier);
- deze woning kan verkocht worden aan natuurlijke personen die de woning zelf gaan bewonen of diens eerstegraads familielid.

Over dit object

Overdracht
Statusverkocht
Prijs€ 270.000 k.k.
Bouw
Bouwjaar1989
Bouwvormbestaande bouw
Type ObjectAppartement
Indeling
Woonoppervlakte70 m²
Perceeloppervlakte1 m²
Woning Inhoud210 m³
Kamers2 (1 slaapkamers)
Energie
EnergielabelC

Geïnteresseerd?
Vraag een hypotheek gesprek aan!

Hypotheek gesprek aanvragen
  • Eerlijk en onafhankelijk advies

  • Persoonlijke benadering en service

  • Direct inzicht in uw mogelijkheden

€ 270.000 k.k.

Buurtinformatie:
Groningen (2660 woningen met 4600 inwoners)

Koop woningen
29%
Huur woningen
70%
Leeftijdsopbouw
0 - 14 jaar
15 - 24 jaar
25 - 44 jaar
45 - 64 jaar
65+ jaar
Samenstelling HuishoudensGroningen
Eenpersoons58%
Zonder kinderen25%
Met kinderen17%
Refresh to make it work.
Terug naar zoekresultaten

Jouw specialist voor dit woningaanbod

Pandomo Makelaars

Pandomo Makelaars

050 853 37 33