Van Lenneplaan 27
9721 PC GRONINGEN
€ 225.000 k.k.
Licht en verzorgd 3-kamer hoek-appartement in de levendige wijk De Wijert!
Dit goed onderhouden appartement beschikt over een ruime en lichte woonkamer, twee slaapkamers, twee balkons: één op het oosten en één op het westen, waardoor je vrijwel de hele dag van de zon kunt genieten, een praktische inpandige berging maakt het geheel.
De ligging is uitstekend: op loopafstand van o.a. supermarkten, scholen en openbaar vervoer. De bruisende binnenstad bereik je in slechts 10 minuten fietsen en dankzij de gunstige ligging ten opzichte van de A28 en A7 ben je ook met de auto snel de stad uit.
INDELING
Begane grond:
Afgesloten portiek met intercom en trappenhuis. Tevens toegang tot de berging in het souterrain.
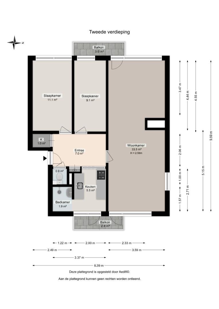
Tweede verdieping:
Entree/hal met meterkast, toilet. Vanuit de hal toegang tot de eenvoudige keuken, geplaatst in rechte opstelling, voorzien van 4-pits gaskookplaat en oven. Vanuit de keuken zijn de badkamer met inloopdouche en wastafel, evenals het balkon op het westen, te bereiken. Ruime en lichte woonkamer (circa 34 m²) voorzien van nette laminaatvloer. De woonkamer biedt tevens toegang tot de twee balkons, op het oosten en westen. Dankzij de hoekligging en de grote raampartijen heeft de woning een lichte uitstraling. De nette slaapkamers van respectievelijk 11 en 9 m² zijn voorzien van een nette laminaatvloer.
Bij het appartement hoort een eigen berging (circa 6 m²).
INFO
- hoek-appartement
- Energielabel C;
- Volledig voorzien van kunststof kozijnen met HR++ beglazing;
- Eigen inpandige berging;
- Actieve VvE, bijdrage €163,00 p/mnd.
Dit goed onderhouden appartement beschikt over een ruime en lichte woonkamer, twee slaapkamers, twee balkons: één op het oosten en één op het westen, waardoor je vrijwel de hele dag van de zon kunt genieten, een praktische inpandige berging maakt het geheel.
De ligging is uitstekend: op loopafstand van o.a. supermarkten, scholen en openbaar vervoer. De bruisende binnenstad bereik je in slechts 10 minuten fietsen en dankzij de gunstige ligging ten opzichte van de A28 en A7 ben je ook met de auto snel de stad uit.
INDELING
Begane grond:
Afgesloten portiek met intercom en trappenhuis. Tevens toegang tot de berging in het souterrain.
Tweede verdieping:
Entree/hal met meterkast, toilet. Vanuit de hal toegang tot de eenvoudige keuken, geplaatst in rechte opstelling, voorzien van 4-pits gaskookplaat en oven. Vanuit de keuken zijn de badkamer met inloopdouche en wastafel, evenals het balkon op het westen, te bereiken. Ruime en lichte woonkamer (circa 34 m²) voorzien van nette laminaatvloer. De woonkamer biedt tevens toegang tot de twee balkons, op het oosten en westen. Dankzij de hoekligging en de grote raampartijen heeft de woning een lichte uitstraling. De nette slaapkamers van respectievelijk 11 en 9 m² zijn voorzien van een nette laminaatvloer.
Bij het appartement hoort een eigen berging (circa 6 m²).
INFO
- hoek-appartement
- Energielabel C;
- Volledig voorzien van kunststof kozijnen met HR++ beglazing;
- Eigen inpandige berging;
- Actieve VvE, bijdrage €163,00 p/mnd.
Over dit object
Overdracht
| Status | verkocht |
|---|---|
| Prijs | € 225.000 k.k. |
Bouw
| Bouwjaar | 1963 |
|---|---|
| Bouwvorm | bestaande bouw |
| Type Object | Appartement |
| Hoofdfunctie | Woonruimte |
Indeling
| Woonoppervlakte | 74 m² |
|---|---|
| Woning Inhoud | 244 m³ |
| Kamers | 3 (2 slaapkamers) |
Energie
| Energielabel | C |
|---|
Buurtinformatie:
Groningen (1775 woningen met 2780 inwoners)
Koop woningen
59%
Huur woningen
41%
Leeftijdsopbouw
| Samenstelling Huishoudens | Groningen |
|---|---|
| Eenpersoons | 66% |
| Zonder kinderen | 20% |
| Met kinderen | 15% |
Refresh to make it work.


































