Meeuwerderweg 31

9724 EM GRONINGEN

€ 239.000 k.k.

Jouw specialist voor dit woningaanbod

Pandomo Makelaars

Pandomo Makelaars

050 853 37 33

In de gezellige woonwijk de Oosterpoort gelegen benedenwoning met 2 slaapkamers en een ruime tuin op het westen!

De wijk ligt dichtbij de gezellige binnenstad en vlakbij vele voorzieningen, een ideale uitvalsbasis voor de actieve Stadjer. Dankzij de hoekligging van de woning is er veel lichtinval in de woonkamer.

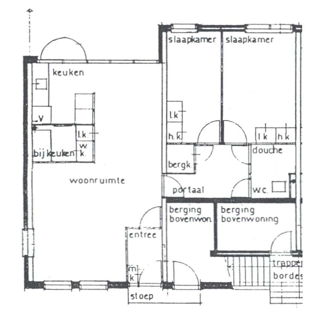
Indeling
Entree/hal met meterkast - lichte woonkamer van circa 31m² - halfopen keuken van circa 6m² met eenvoudige opstelling - bijkeuken met CV-ketel, kasten en witgoedaansluitingen - vanuit de woonkamer een hal naar twee slaapkamers van 9 en 12m² met vaste kasten - badkamer met douche, wastafel en wc - via de keuken is de ruime tuin op het westen toegankelijk - achterom is de vrijstaande stenen berging van circa 4m² te vinden.

Info
- toplocatie;
- ruime tuin op het westen;
- actieve VvE, bijdrage €68,11 per maand;
- projectnotaris van toepassing (keuze uit 4);
- deze woning kan alleen worden verkocht aan natuurlijke personen die de eerste twee jaar na de overdracht de woning zelf gaan bewonen of een familielid uit de eerste graad.

Over dit object

Overdracht
Statusverkocht
Prijs€ 239.000 k.k.
Bouw
Bouwjaar1976
Bouwvormbestaande bouw
Type ObjectAppartement
Indeling
Woonoppervlakte74 m²
Woning Inhoud210 m³
Kamers3 (2 slaapkamers)
Energie
EnergielabelC

Geïnteresseerd?
Vraag een hypotheek gesprek aan!

Hypotheek gesprek aanvragen
  • Eerlijk en onafhankelijk advies

  • Persoonlijke benadering en service

  • Direct inzicht in uw mogelijkheden

€ 239.000 k.k.

Buurtinformatie:
Groningen (3675 woningen met 5130 inwoners)

Koop woningen
40%
Huur woningen
59%
Leeftijdsopbouw
0 - 14 jaar
15 - 24 jaar
25 - 44 jaar
45 - 64 jaar
65+ jaar
Samenstelling HuishoudensGroningen
Eenpersoons71%
Zonder kinderen20%
Met kinderen8%
Refresh to make it work.
Terug naar zoekresultaten

Jouw specialist voor dit woningaanbod

Pandomo Makelaars

Pandomo Makelaars

050 853 37 33