Maaskantlaan 20

9731 LV GRONINGEN

€ 269.000 k.k.

Jouw specialist voor dit woningaanbod

Pandomo Makelaars

Pandomo Makelaars

050 853 37 33

Gelegen in de rustige en kindvriendelijke stadwijk "de Hunze", staat deze goed onderhouden tussenwoning met fraaie diepe tuin en parkeren op eigen terrein!

De woning beschikt over een sfeervolle tuingerichte woonkamer met open keuken, twee slaapkamers (eventueel eenvoudig 3 van te maken) en een ruime badkamer.

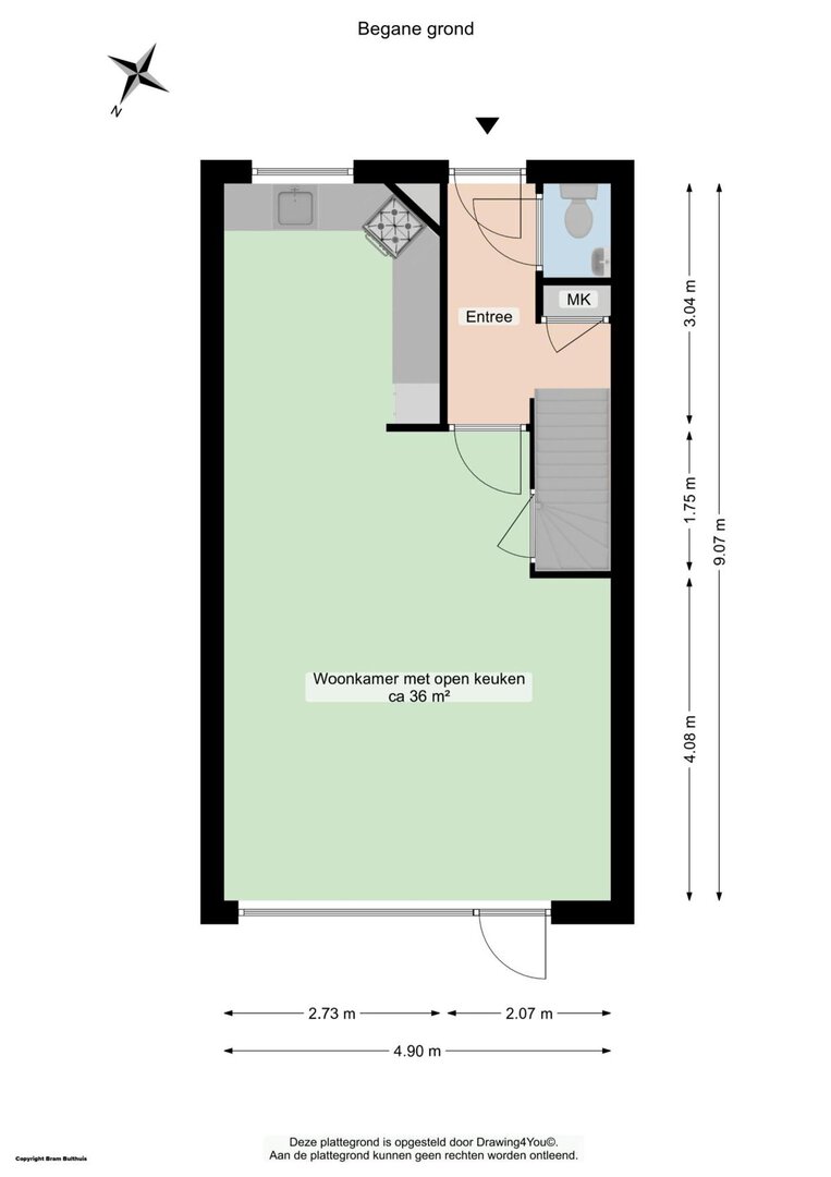
Indeling
entree/hal, toilet met wandcloset voorzien van fonteintje, ruime tuingerichte woonkamer met open keuken (samen ca. 36 m²) de keuken aan de voorzijde in geplaatst in hoekopstelling en voorzien van diverse inbouwapparatuur. De sfeervolle woonkamer aan de achterzijde is heerlijk licht en voorzien van extra bergruimte onder te trap.

1e verdieping;
overloop met daaraan 2 slaapkamers van 8 en 20 m² groot. De grootste is voorzien van inbouwkasten en eventueel eenvoudig op te delen in twee kamers. De badkamer is voorzien van ligbad, douche en wastafel. De "oude" badkamer is nu in gebruik als wasruimte, opbergruimte en stookruimte. Een 2e toilet is ook nog aanwezig.

Tuinen.
aan de voorzijde de mogelijkheid om de auto op eigen terrein te parkeren. Aan de achterzijde een diepe onderhoudsarme tuin op het noordwesten. De tuin is voorzien van ruim terras, bloemenborders, houten berging (6 m²) en achterom.

Bijzonderheden:
- kindvriendelijke en rustige woonomgeving;
- cv verwarmd middels Intergas Hr, 2009;
- parkeren op eigen terrein;
- schilderwerk extern 2021;

Aanvaarding in overleg.

Over dit object

Overdracht
Statusverkocht
Prijs€ 269.000 k.k.
Bouw
Bouwjaar1989
Bouwvormbestaande bouw
Type ObjectWoonhuis
Indeling
Woonoppervlakte89 m²
Perceeloppervlakte139 m²
Woning Inhoud283 m³
Kamers3 (2 slaapkamers)
Energie
EnergielabelC

Geïnteresseerd?
Vraag een hypotheek gesprek aan!

Hypotheek gesprek aanvragen
  • Eerlijk en onafhankelijk advies

  • Persoonlijke benadering en service

  • Direct inzicht in uw mogelijkheden

€ 269.000 k.k.

Buurtinformatie:
Groningen (1520 woningen met 3395 inwoners)

Koop woningen
61%
Huur woningen
39%
Leeftijdsopbouw
0 - 14 jaar
15 - 24 jaar
25 - 44 jaar
45 - 64 jaar
65+ jaar
Samenstelling HuishoudensGroningen
Eenpersoons31%
Zonder kinderen34%
Met kinderen36%
Refresh to make it work.
Terug naar zoekresultaten
“De Hunze: een hele fijne wijk om in te wonen!”

We vinden de Hunze zo’n fijne, rustige en kindvriendelijke buurt dat we hebben besloten om maar een paar straten verder op te gaan wonen. Het fijne aan deze woning is dat het zich bevind aan een brede straat en dat het een licht huis is die warm blijft in de winter en koel blijft in de zomer.

Jouw specialist voor dit woningaanbod

Pandomo Makelaars

Pandomo Makelaars

050 853 37 33