Grote Leliestraat 121

9712 ST GRONINGEN

€ 250.000 k.k.

Jouw specialist voor dit woningaanbod

Pandomo Makelaars

Pandomo Makelaars

050 853 37 33

Een 3-kamer benedenwoning met leuke stadstuin op het noordwesten en op een mooie, rustige locatie in de Hortusbuurt gelegen op loopafstand van het Noorderplantsoen en de Groninger binnenstad. De woning maakt deel uit van een complex met 11 appartementen, welke toegankelijk zijn via een centrale portiek. Een heerlijke benedenwoning op top locatie die het verdient om gemoderniseerd te worden!

Indeling
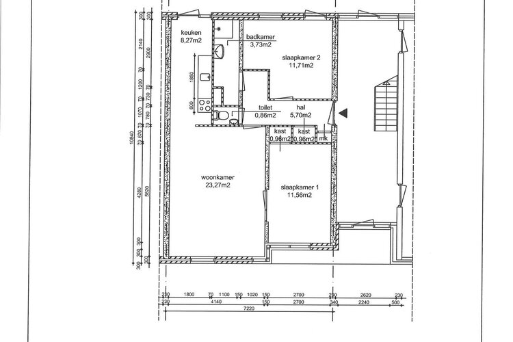
Begane grond: centrale portiek, entree, hal met toilet, meterkast en vaste kast, woonkamer circa 23m², halfopen keuken van circa 8m² met eenvoudige keukeninrichting, CV-ketel en deur naar achtertuin, badkamer met douche, wastafel en wasmachine aansluiting, twee slaapkamers van circa 12m² met vaste kast en circa 12m² met deur naar achtertuin van circa 54m² met achterom en vrijstaande stenen berging.

Bijzonderheden
-Geweldige locatie;
-Grotendeels voorzien van isolatieglas;
-CV-ketel Vaillant 2011;
-Actieve VvE € 134,01 per maand;
-Projectnotaris van toepassing (Lambeck Harms);
-Kamersgewijze bewoning is niet toegestaan;
-Deze woning kan alleen worden verkocht aan natuurlijke personen die de eerste twee jaar na de overdracht de woning zelf gaan bewonen of een familielid uit de eerste graad.

Over dit object

Overdracht
Statusverkocht
Prijs€ 250.000 k.k.
Bouw
Bouwjaar1984
Bouwvormbestaande bouw
Type ObjectAppartement
Indeling
Woonoppervlakte74 m²
Woning Inhoud210 m³
Kamers3 (2 slaapkamers)
Energie
EnergielabelB

Geïnteresseerd?
Vraag een hypotheek gesprek aan!

Hypotheek gesprek aanvragen
  • Eerlijk en onafhankelijk advies

  • Persoonlijke benadering en service

  • Direct inzicht in uw mogelijkheden

€ 250.000 k.k.

Buurtinformatie:
Groningen (2270 woningen met 2770 inwoners)

Koop woningen
25%
Huur woningen
68%
Leeftijdsopbouw
0 - 14 jaar
15 - 24 jaar
25 - 44 jaar
45 - 64 jaar
65+ jaar
Samenstelling HuishoudensGroningen
Eenpersoons85%
Zonder kinderen12%
Met kinderen3%
Refresh to make it work.
Terug naar zoekresultaten

Jouw specialist voor dit woningaanbod

Pandomo Makelaars

Pandomo Makelaars

050 853 37 33