Grote Kruisstraat 63

9712 TR GRONINGEN

€ 195.000 k.k.

Jouw specialist voor dit woningaanbod

Pandomo Makelaars

Pandomo Makelaars

050 853 37 33

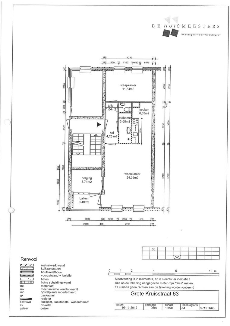
Op een fantastische locatie in de Hortusbuurt gelegen 3-kamer appartement op de tweede (bovenste) etage met zonnig gelegen balkon op het zuiden! Een leuke woning voor starters of ouders voor kinderen. Op loopafstand van het Noorderplantsoen en de Groninger binnenstad.

Indeling:
Centrale afgesloten entree met intercom - via trappenhuis naar de...

2e etage:
Entree - hal - toilet - badkamer met douche, wastafel en wasmachine aansluiting - lichte woonkamer circa 31m² en deur naar een kleine slaapkamer circa 6m² met deur naar het balkon op het zuiden - open keuken met eenvoudige keukeninrichting - slaapkamer circa 12m².

Inpandige berging circa 4m² onderin het complex.

Bijzonderheden:
Verwarming d.m.v. cv-combiketel (Remeha Tzerra bj. 2018);
Voorzien van isolatieglas;
Energielabel B;
Mechanische ventilatie;
Bijdrage V.v.E. € 94,61 per maand;
Projectnotaris van toepassing (Lambeck Harms);
Kamersgewijze bewoning is niet toegestaan;
Deze woning dient te worden gekocht door een natuurlijk persoon die de eerste twee jaar na de overdracht de woning zelf gaat bewonen of een familielid uit de eerste graad.

Over dit object

Overdracht
Statusverkocht
Prijs€ 195.000 k.k.
Bouw
Bouwjaar1981
Bouwvormbestaande bouw
Type ObjectAppartement
Indeling
Woonoppervlakte58 m²
Woning Inhoud180 m³
Kamers3 (2 slaapkamers)
Energie
EnergielabelB

Geïnteresseerd?
Vraag een hypotheek gesprek aan!

Hypotheek gesprek aanvragen
  • Eerlijk en onafhankelijk advies

  • Persoonlijke benadering en service

  • Direct inzicht in uw mogelijkheden

€ 195.000 k.k.

Buurtinformatie:
Groningen (2270 woningen met 2770 inwoners)

Koop woningen
25%
Huur woningen
68%
Leeftijdsopbouw
0 - 14 jaar
15 - 24 jaar
25 - 44 jaar
45 - 64 jaar
65+ jaar
Samenstelling HuishoudensGroningen
Eenpersoons85%
Zonder kinderen12%
Met kinderen3%
Refresh to make it work.
Terug naar zoekresultaten

Jouw specialist voor dit woningaanbod

Pandomo Makelaars

Pandomo Makelaars

050 853 37 33