Parkrand Estate
9613 CG Meerstad
van € 329.500 tot € 1.099.500
Parkrand Estate: 29 comfortabele en energiezuinige appartementen in Groenewei Meerstad.
Royaal gelijkvloers wonen in Groenewei, met het beste uitzicht van Meerstad. Het kan in appartementengebouw Parkrand Estate. Een unieke kans, want Meerstad telt tot nu toe pas 12 appartementen. Parkrand Estate wordt een ware eyecatcher aan de rand van de jonge wijk Groenewei. Vanuit je appartement kijk je uit over Park Meerstad, dat als een soort landgoed aan je voeten ligt. De verspringende gevelopbouw op de bovenste bouwlagen geeft het woongebouw een kleinschalige uitstraling.
Parkrand Estate biedt voor elk wat wils; van comfortabele appartementen van 72 vierkante meter tot een penthouse van maar liefst 275 vierkante meter. Ze hebben allemaal een eigen parkeerplaats. Alle 29 appartementen beschikken over een ruim terras op de begane grond, een royaal gemetseld balkon of over een dakterras. Hier geniet je eindeloos van een weids uitzicht over de parkachtige omgeving.
De appartementen van Parkrand Estate zijn natuurlijk gasloos. Ze voldoen aan de jongste normen voor Bijna Energie Neutrale Gebouwen (BENG). Zo zijn de appartementen voorzien van vloerverwarming en kunststof kozijnen met triple-glas. Het woongebouw wordt verwarmd door een water -warmtepomp en elk appartement heeft een individuele WTW-installatie (wtw staat voor warmteterugwinning). In de winter zit je behaaglijk warm en in de zomer lekker koel.
In Parkrand geniet je van het beste van twee werelden. Je ervaart de ruimte en natuur van Groenewei. Flaneer door het grote, glooiende, groene Park Meerstad. Of recreëer op het strandje aan het Woldmeer. Daarnaast is de wijk het levendige, kloppende hart van Meerstad. Op steenworp afstand zijn diverse voorzieningen zoals een supermarkt en een gezondheidscentrum.
Bekijk alle verkoopdocumenten op parkrandblvd.nl/downloads-appartementen.
Royaal gelijkvloers wonen in Groenewei, met het beste uitzicht van Meerstad. Het kan in appartementengebouw Parkrand Estate. Een unieke kans, want Meerstad telt tot nu toe pas 12 appartementen. Parkrand Estate wordt een ware eyecatcher aan de rand van de jonge wijk Groenewei. Vanuit je appartement kijk je uit over Park Meerstad, dat als een soort landgoed aan je voeten ligt. De verspringende gevelopbouw op de bovenste bouwlagen geeft het woongebouw een kleinschalige uitstraling.
Parkrand Estate biedt voor elk wat wils; van comfortabele appartementen van 72 vierkante meter tot een penthouse van maar liefst 275 vierkante meter. Ze hebben allemaal een eigen parkeerplaats. Alle 29 appartementen beschikken over een ruim terras op de begane grond, een royaal gemetseld balkon of over een dakterras. Hier geniet je eindeloos van een weids uitzicht over de parkachtige omgeving.
De appartementen van Parkrand Estate zijn natuurlijk gasloos. Ze voldoen aan de jongste normen voor Bijna Energie Neutrale Gebouwen (BENG). Zo zijn de appartementen voorzien van vloerverwarming en kunststof kozijnen met triple-glas. Het woongebouw wordt verwarmd door een water -warmtepomp en elk appartement heeft een individuele WTW-installatie (wtw staat voor warmteterugwinning). In de winter zit je behaaglijk warm en in de zomer lekker koel.
In Parkrand geniet je van het beste van twee werelden. Je ervaart de ruimte en natuur van Groenewei. Flaneer door het grote, glooiende, groene Park Meerstad. Of recreëer op het strandje aan het Woldmeer. Daarnaast is de wijk het levendige, kloppende hart van Meerstad. Op steenworp afstand zijn diverse voorzieningen zoals een supermarkt en een gezondheidscentrum.
Bekijk alle verkoopdocumenten op parkrandblvd.nl/downloads-appartementen.
Over dit object
Overdracht
| Status | verkocht |
|---|---|
| Prijs | van € 329.500 tot € 1.099.500 |
| Aantal Kavels | 29 |
Bouw
| Bouwvorm | nieuwbouw |
|---|
Indeling
| Woonoppervlakte | van 72 tot 275 m² |
|---|---|
| Perceeloppervlakte | 203 m² |
Volg dit project
Benieuwd naar dit project? Schrijf u in op de nieuwsbrief van Parkrand Estate!
Woningtypen
Parkrand Estate - Appartementen
van € 329.500 tot € 1.099.500
29 bouwnummers
Meer informatie
Parkrand Estate: 29 comfortabele en energiezuinige appartementen in Groenewei Meerstad.
Royaal gelijkvloers wonen in Groenewei, met het beste uitzicht van Meerstad. Het kan in appartementengebouw Parkrand Estate. Een unieke kans, want Meerstad telt tot nu toe pas 12 appartementen. Parkrand Estate wordt een ware eyecatcher aan de rand van de jonge wijk Groenewei. Vanuit je appartement kijk je uit over Park Meerstad, dat als een soort landgoed aan je voeten ligt. De verspringende gevelopbouw op de bovenste bouwlagen geeft het woongebouw een kleinschalige uitstraling.
Parkrand Estate biedt voor elk wat wils; van comfortabele appartementen van 72 vierkante meter tot een penthouse van maar liefst 275 vierkante meter. Ze hebben allemaal een eigen parkeerplaats. Alle 29 appartementen beschikken over een ruim terras op de begane grond, een royaal gemetseld balkon of over een dakterras. Hier geniet je eindeloos van een weids uitzicht over de parkachtige omgeving.
De appartementen van Parkrand Estate zijn natuurlijk gasloos. Ze voldoen aan de jongste normen voor Bijna Energie Neutrale Gebouwen (BENG). Zo zijn de appartementen voorzien van vloerverwarming en kunststof kozijnen met triple-glas. Het woongebouw wordt verwarmd door een water -warmtepomp en elk appartement heeft een individuele WTW-installatie (wtw staat voor warmteterugwinning). In de winter zit je behaaglijk warm en in de zomer lekker koel.
In Parkrand geniet je van het beste van twee werelden. Je ervaart de ruimte en natuur van Groenewei. Flaneer door het grote, glooiende, groene Park Meerstad. Of recreëer op het strandje aan het Woldmeer. Daarnaast is de wijk het levendige, kloppende hart van Meerstad. Op steenworp afstand zijn diverse voorzieningen zoals een supermarkt en een gezondheidscentrum.
Bekijk alle verkoopdocumenten op parkrandblvd.nl/downloads-appartementen.
Royaal gelijkvloers wonen in Groenewei, met het beste uitzicht van Meerstad. Het kan in appartementengebouw Parkrand Estate. Een unieke kans, want Meerstad telt tot nu toe pas 12 appartementen. Parkrand Estate wordt een ware eyecatcher aan de rand van de jonge wijk Groenewei. Vanuit je appartement kijk je uit over Park Meerstad, dat als een soort landgoed aan je voeten ligt. De verspringende gevelopbouw op de bovenste bouwlagen geeft het woongebouw een kleinschalige uitstraling.
Parkrand Estate biedt voor elk wat wils; van comfortabele appartementen van 72 vierkante meter tot een penthouse van maar liefst 275 vierkante meter. Ze hebben allemaal een eigen parkeerplaats. Alle 29 appartementen beschikken over een ruim terras op de begane grond, een royaal gemetseld balkon of over een dakterras. Hier geniet je eindeloos van een weids uitzicht over de parkachtige omgeving.
De appartementen van Parkrand Estate zijn natuurlijk gasloos. Ze voldoen aan de jongste normen voor Bijna Energie Neutrale Gebouwen (BENG). Zo zijn de appartementen voorzien van vloerverwarming en kunststof kozijnen met triple-glas. Het woongebouw wordt verwarmd door een water -warmtepomp en elk appartement heeft een individuele WTW-installatie (wtw staat voor warmteterugwinning). In de winter zit je behaaglijk warm en in de zomer lekker koel.
In Parkrand geniet je van het beste van twee werelden. Je ervaart de ruimte en natuur van Groenewei. Flaneer door het grote, glooiende, groene Park Meerstad. Of recreëer op het strandje aan het Woldmeer. Daarnaast is de wijk het levendige, kloppende hart van Meerstad. Op steenworp afstand zijn diverse voorzieningen zoals een supermarkt en een gezondheidscentrum.
Bekijk alle verkoopdocumenten op parkrandblvd.nl/downloads-appartementen.
Parkrand Estate - Appartementen (Bouwnr. 0.1)
€ 437.500,- v.o.n.95m2Appartement verkochtParkrand Estate - Appartementen (Bouwnr. 0.2)
€ 339.500,- v.o.n.72m2Appartement verkochtParkrand Estate - Appartementen (Bouwnr. 0.3)
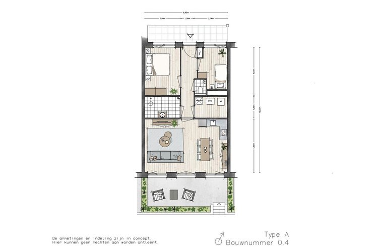
€ 339.500,- v.o.n.72m2Appartement verkochtParkrand Estate - Appartementen (Bouwnr. 0.4)
€ 339.500,- v.o.n.72m2Appartement verkocht
Parkrand Estate - Appartementen (Bouwnr. 0.5)
€ 339.500,- v.o.n.72m2Appartement verkochtParkrand Estate - Appartementen (Bouwnr. 0.6)
€ 502.850,- v.o.n.113m2Appartement verkochtParkrand Estate - Appartementen (Bouwnr. 0.7)
€ 466.935,- v.o.n.103m2Appartement verkochtParkrand Estate - Appartementen (Bouwnr. 1.1)
€ 419.500,- v.o.n.95m2Appartement verkochtParkrand Estate - Appartementen (Bouwnr. 1.2)
€ 329.500,- v.o.n.72m2Appartement verkochtParkrand Estate - Appartementen (Bouwnr. 1.3)
€ 329.500,- v.o.n.72m2Appartement verkochtParkrand Estate - Appartementen (Bouwnr. 1.4)
€ 432.500,- v.o.n.100m2Appartement verkochtParkrand Estate - Appartementen (Bouwnr. 1.5)
€ 515.895,- v.o.n.121m2Appartement verkochtParkrand Estate - Appartementen (Bouwnr. 1.6)
€ 329.500,- v.o.n.72m2Appartement verkochtParkrand Estate - Appartementen (Bouwnr. 1.7)
€ 467.500,- v.o.n.113m2Appartement verkochtParkrand Estate - Appartementen (Bouwnr. 1.8)
€ 451.270,- v.o.n.103m2Appartement verkochtParkrand Estate - Appartementen (Bouwnr. 2.1)
€ 342.500,- v.o.n.80m2Appartement verkochtParkrand Estate - Appartementen (Bouwnr. 2.2)
€ 329.500,- v.o.n.72m2Appartement verkochtParkrand Estate - Appartementen (Bouwnr. 2.3)
€ 329.500,- v.o.n.72m2Appartement verkochtParkrand Estate - Appartementen (Bouwnr. 2.4)
€ 435.000,- v.o.n.100m2Appartement verkochtParkrand Estate - Appartementen (Bouwnr. 2.5)
€ 512.500,- v.o.n.121m2Appartement verkochtParkrand Estate - Appartementen (Bouwnr. 2.6)
€ 329.500,- v.o.n.72m2Appartement verkochtParkrand Estate - Appartementen (Bouwnr. 2.7)
€ 429.500,- v.o.n.96m2Appartement verkochtParkrand Estate - Appartementen (Bouwnr. 2.8)
€ 445.770,- v.o.n.97m2Appartement verkochtParkrand Estate - Appartementen (Bouwnr. 3.1)
€ 689.500,- v.o.n.144m2Appartement verkochtParkrand Estate - Appartementen (Bouwnr. 3.2)
€ 437.500,- v.o.n.100m2Appartement verkochtParkrand Estate - Appartementen (Bouwnr. 3.3)
€ 329.500,- v.o.n.72m2Appartement verkochtParkrand Estate - Appartementen (Bouwnr. 3.4)
€ 677.500,- v.o.n.144m2Appartement verkochtParkrand Estate - Appartementen (Bouwnr. 4.1)
€ 1.099.500,- v.o.n.275m2Appartement verkochtParkrand Estate - Appartementen (Bouwnr. 4.2)
€ 825.000,- v.o.n.160m2Appartement verkocht
Buurtinformatie:
Slochteren (195 woningen met 490 inwoners)
Koop woningen
74%
Huur woningen
25%
Leeftijdsopbouw
| Samenstelling Huishoudens | Slochteren |
|---|---|
| Eenpersoons | 23% |
| Zonder kinderen | 33% |
| Met kinderen | 45% |
Refresh to make it work.













































