Korreweg 211 14

9714 AL GRONINGEN

€ 1.125,00 p.m

Jouw specialist voor dit woningaanbod

Pandomo Makelaars

Pandomo Makelaars

050 853 37 33

Begin november beschikbaar, heerlijk licht en ruim appartement (ca. 100m²) met lift, gelegen in het in 2010 opgeleverde complex "De Korrezoom" met balkon op het Zuidenwesten, eigen parkeerplaats en berging.

Indeling:
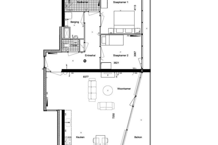
Hal met een gang waaraan het toilet, de bijkeuken/berging, de badkamer en 2 slaapkamers zijn gelegen. De bijkeuken/berging (ca. 5m²) heeft een opstelplaats voor het witgoed en de cv-ketel. De slaapkamers zijn resp. ca. 15m² en ca. 11m² en hebben beiden een deur naar het balkon. De badkamer is in 2016 gemoderniseerd met een ruime glazen douchehoek en wastafelmeubel.
Vanuit de hal komt u in de heerlijk lichte Living (Tot. ca. 53m²) met woonkamer, open keuken en royaal balkon op het Zuidwesten. De keuken heeft een moderne, stak uitgevoerde inrichting met inbouwapparatuur als een vaatwasser, koelkast, gaskookplaat, afzuigunit en combi-oven. Verder heeft de keuken een stenen werkblad.

Bijzonderheden:
- Gestoffeerd
- 2 slaapkamers
- Beschikbaar per 1 november
- Privé parkeergelegenheid

Financieel:
- Huurprijs €1.125,- per maand exclusief utiliteiten
- Servicekosten € 65,-
- Totaal € 1.190,-
- Borgsom €1.190,-

Verhuurvoorwaarden
- Per 1 November aanvaarding
- Woning wordt gestoffeerd aangeboden
- Inkomenseis: minimaal 3.500 bruto per maand


De bezichtigingen worden ingepland op vrijdagmiddag 8 oktober 2021.

Over dit object

Overdracht
Statusverhuurd
Prijs€ 1.125,00 p.m
Bouw
Bouwjaar2010
Bouwvormbestaande bouw
Type ObjectAppartement
HoofdfunctieWoonruimte
Indeling
Woonoppervlakte100 m²
Woning Inhoud300 m³
Kamers3 (2 slaapkamers)
Energie
EnergielabelA

Vaste procedure voor verhuur

Enthousiast over de woning? Vul dan het formulier bezichtiging aanvragen volledig in. De verhuurmakelaar maakt een selectie van kandidaten die de woning mogen bezichtigen. Indien je uitgenodigd wordt voor een bezichtiging bellen wij jou voor het plannen van een afspraak.

Geïnteresseerd?
Plan een bezichtiging!

€ 1.125,00 p.m

Buurtinformatie:
Groningen (4215 woningen met 6050 inwoners)

Koop woningen
46%
Huur woningen
53%
Leeftijdsopbouw
0 - 14 jaar
15 - 24 jaar
25 - 44 jaar
45 - 64 jaar
65+ jaar
Samenstelling HuishoudensGroningen
Eenpersoons74%
Zonder kinderen19%
Met kinderen7%
Refresh to make it work.
Terug naar zoekresultaten

Jouw specialist voor dit woningaanbod

Pandomo Makelaars

Pandomo Makelaars

050 853 37 33