Kochstraat 96
9728 KG GRONINGEN
€ 235.000 k.k.
Starters opgelet: leuk appartement met potentie aan de Kochstraat 96, Groningen
Op zoek naar een woning met ruimte én mogelijkheden? Dan is dit je kans! Aan de leuke Kochstraat in Groningen bieden wij dit ruime 3-kamerappartement (ca. 82 m²) aan, gelegen op de tweede verdieping van een verzorgd complex met actieve VvE. Een ideale kans voor starters en handige kijkers die niet bang zijn om hun handen uit de mouwen te steken!
De Kochstraat ligt in de wijk De Wijert, een rustige en fijne buurt aan de zuidkant van Groningen. Alle dagelijkse voorzieningen zijn dichtbij, met winkelcentrum het Overwinningsplein op loopafstand. Openbaar vervoer is eveneens dichtbij, met meerdere bushaltes en uitvalswegen op korte afstand gelegen.
INDELING:
Begane grond:
Afgesloten portiek met intercom, trapopgang en toegang tot de inpandige bergingen in het souterrain.
Tweede verdieping:
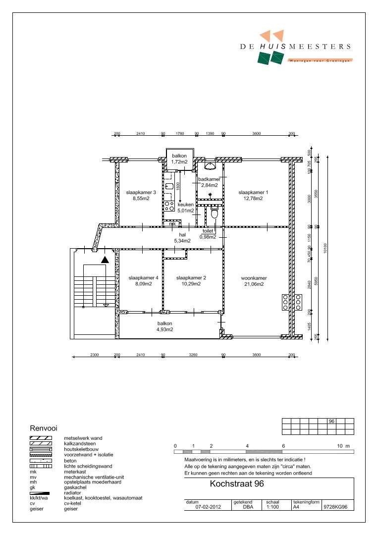
Entree/hal met toegang tot 2 slaapkamers, respectievelijk te weten circa 8 en 10 m². De keuken is eveneens bereikbaar vanuit de en voorzien van een keukenblok. Tevens heeft u vanuit de keuken toegang tot de badkamer (ca. 3 m²), welke is voorzien van een wastafel en douche. Het separate toilet (ca. 1 m²) en de woonkamer (ca. 34 m²) zijn eveneens bereikbaar vanuit de hal. De open woonkamer is voorzien van grote ramen en geeft toegang tot een eventuele derde slaapkamer. Vanuit de grote slaapkamer en de keuken heeft u toegang tot twee balkons.
Informatie:
- Bouwjaar 1910;
- Energielabel D;
- Balkon van 5 m²;
- 3 met mogelijkheid tot 4 slaapkamers;
- (Actieve) VvE, maandelijkse bijdrage €95,75;
- Verwarming d.m.v. C.V.-ketel (Intergas), bouwjaar 2012.
Verkoopvoorwaarden, onder andere:
- Niet-zelfbewoningsclausule;
- Projectnotaris van toepassing;
- Dit appartement mag alleen worden verkocht aan natuurlijke personen die de woning zelf gaan bewonen, of voor iemand in de eerste graad (bijv. zoon/dochter), deze zelfbewoningsplicht geldt voor de eerste vier jaren na de overdracht.
Op zoek naar een woning met ruimte én mogelijkheden? Dan is dit je kans! Aan de leuke Kochstraat in Groningen bieden wij dit ruime 3-kamerappartement (ca. 82 m²) aan, gelegen op de tweede verdieping van een verzorgd complex met actieve VvE. Een ideale kans voor starters en handige kijkers die niet bang zijn om hun handen uit de mouwen te steken!
De Kochstraat ligt in de wijk De Wijert, een rustige en fijne buurt aan de zuidkant van Groningen. Alle dagelijkse voorzieningen zijn dichtbij, met winkelcentrum het Overwinningsplein op loopafstand. Openbaar vervoer is eveneens dichtbij, met meerdere bushaltes en uitvalswegen op korte afstand gelegen.
INDELING:
Begane grond:
Afgesloten portiek met intercom, trapopgang en toegang tot de inpandige bergingen in het souterrain.
Tweede verdieping:
Entree/hal met toegang tot 2 slaapkamers, respectievelijk te weten circa 8 en 10 m². De keuken is eveneens bereikbaar vanuit de en voorzien van een keukenblok. Tevens heeft u vanuit de keuken toegang tot de badkamer (ca. 3 m²), welke is voorzien van een wastafel en douche. Het separate toilet (ca. 1 m²) en de woonkamer (ca. 34 m²) zijn eveneens bereikbaar vanuit de hal. De open woonkamer is voorzien van grote ramen en geeft toegang tot een eventuele derde slaapkamer. Vanuit de grote slaapkamer en de keuken heeft u toegang tot twee balkons.
Informatie:
- Bouwjaar 1910;
- Energielabel D;
- Balkon van 5 m²;
- 3 met mogelijkheid tot 4 slaapkamers;
- (Actieve) VvE, maandelijkse bijdrage €95,75;
- Verwarming d.m.v. C.V.-ketel (Intergas), bouwjaar 2012.
Verkoopvoorwaarden, onder andere:
- Niet-zelfbewoningsclausule;
- Projectnotaris van toepassing;
- Dit appartement mag alleen worden verkocht aan natuurlijke personen die de woning zelf gaan bewonen, of voor iemand in de eerste graad (bijv. zoon/dochter), deze zelfbewoningsplicht geldt voor de eerste vier jaren na de overdracht.
Over dit object
Overdracht
| Status | verkocht onder voorbehoud |
|---|---|
| Prijs | € 235.000 k.k. |
Bouw
| Bouwjaar | 1959 |
|---|---|
| Bouwvorm | bestaande bouw |
| Type Object | Appartement |
| Hoofdfunctie | Woonruimte |
Indeling
| Woonoppervlakte | 82 m² |
|---|---|
| Woning Inhoud | 270 m³ |
| Kamers | 3 (2 slaapkamers) |
Energie
| Energielabel | D |
|---|
Buurtinformatie:
Groningen (2660 woningen met 4600 inwoners)
Koop woningen
29%
Huur woningen
70%
Leeftijdsopbouw
| Samenstelling Huishoudens | Groningen |
|---|---|
| Eenpersoons | 58% |
| Zonder kinderen | 25% |
| Met kinderen | 17% |
Refresh to make it work.








































