Het Lansink 15
9716 KC GRONINGEN
€ 435.000 k.k.
Een heerlijke instapklare en energiezuinige eengezinswoning met zonnige achtertuin, moderne voorzieningen en de afgelopen jaren zorgvuldig bewoond geweest. Duurzaam gebouwd en naderhand voorzien van 10 zonnepanelen wat heeft geresulteerd in een energielabel A++. De ligging nabij de ringweg zorgt voor een snelle ontsluiting en tevens op korte afstand van de binnenstad, het UMCG en Zernike. Het Lansink is een rustige eenrichtingsstraat met veel groen en heeft een fijne ligging aan de rand van woonwijk De Hoogte met voorzieningen zoals winkels, sportclubs en scholen allemaal op korte loop- en fietsafstand.
INDELING
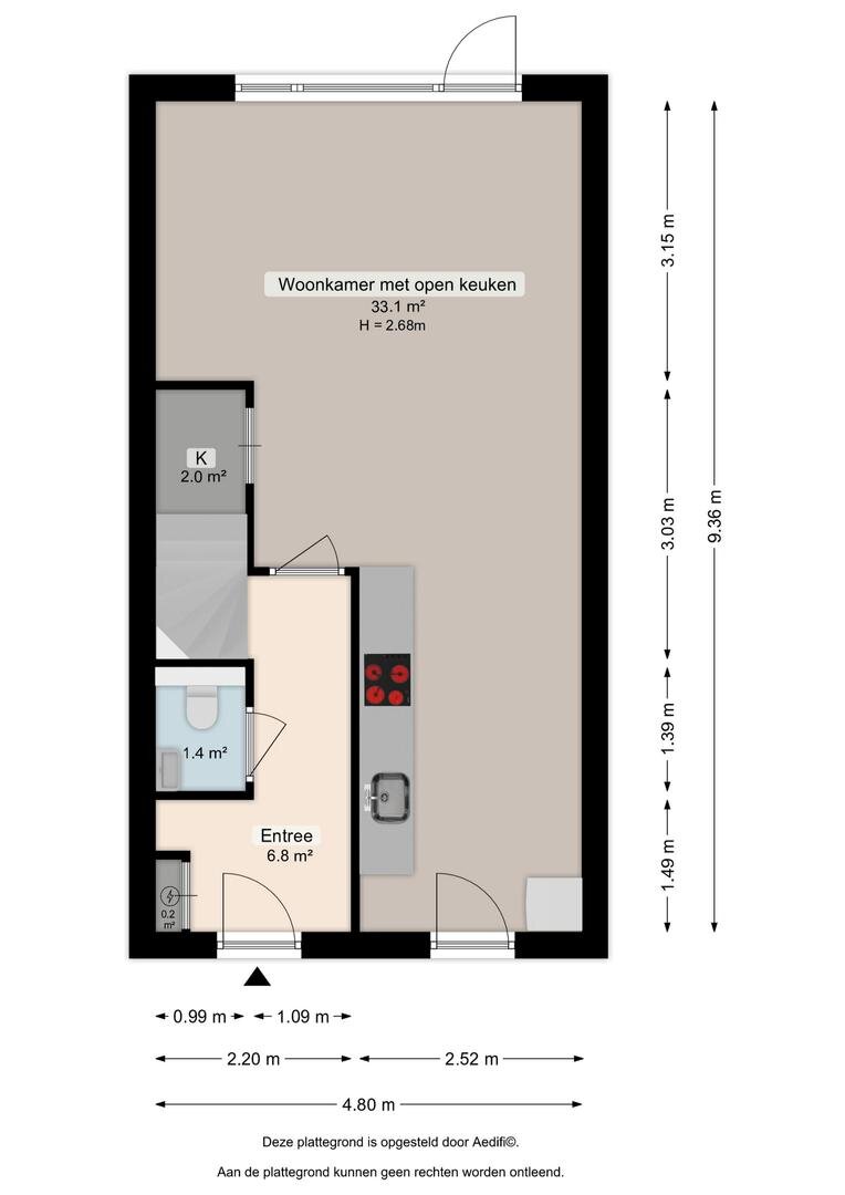
Begane grond (vloerverwarming):
Entree - hal - toilet met hangcloset en fonteintje - tuingerichte sfeervolle woonkamer (33m²) met PVC-vloer, airco, trapkast, deur naar de achtertuin op het zuidoosten met houten berging en achterom - open keuken met moderne keukeninrichting (o.a. vaatwasmachine, combioven, koelkast, inductie kookplaat en afzuigkap).
1e Verdieping:
Overloop - 3 slaapkamers van 14 (met airco), 12 (met kastenwand) en 6m² - royale moderne badkamer (6m²) met ligbad, inloopdouche, wastafelmeubel, zwevend toilet en handdoekradiator.
2e Verdieping:
Royale zolderruimte (26m²) en in gebruik als werk-/slaapkamer - technische ruimte met opstelling cv-combiketel, WTW-unit en wasmachine aansluiting.
BUITENRUIMTE
Verzorgde en zonnig gelegen achtertuin (49m²) op het zuidoosten met een houten fietsenberging en achterom.
INFO
- energielabel A++;
- afgesloten binnenterrein;
- 10 zonnepanelen (bj. 2021);
- verwarming d.m.v. cv-combiketel (ATAG, bj. 2021);
- begane grond voorzien van vloerverwarming;
- woonkamer en slaapkamer voorzien van airco;
- houten berging (v.v. elektra) in de achtertuin;
- volledig geïsoleerd en voorzien van HR++ glas;
- op tien fietsminuten van de Grote Markt, Zernike en het UMCG.
INDELING
Begane grond (vloerverwarming):
Entree - hal - toilet met hangcloset en fonteintje - tuingerichte sfeervolle woonkamer (33m²) met PVC-vloer, airco, trapkast, deur naar de achtertuin op het zuidoosten met houten berging en achterom - open keuken met moderne keukeninrichting (o.a. vaatwasmachine, combioven, koelkast, inductie kookplaat en afzuigkap).
1e Verdieping:
Overloop - 3 slaapkamers van 14 (met airco), 12 (met kastenwand) en 6m² - royale moderne badkamer (6m²) met ligbad, inloopdouche, wastafelmeubel, zwevend toilet en handdoekradiator.
2e Verdieping:
Royale zolderruimte (26m²) en in gebruik als werk-/slaapkamer - technische ruimte met opstelling cv-combiketel, WTW-unit en wasmachine aansluiting.
BUITENRUIMTE
Verzorgde en zonnig gelegen achtertuin (49m²) op het zuidoosten met een houten fietsenberging en achterom.
INFO
- energielabel A++;
- afgesloten binnenterrein;
- 10 zonnepanelen (bj. 2021);
- verwarming d.m.v. cv-combiketel (ATAG, bj. 2021);
- begane grond voorzien van vloerverwarming;
- woonkamer en slaapkamer voorzien van airco;
- houten berging (v.v. elektra) in de achtertuin;
- volledig geïsoleerd en voorzien van HR++ glas;
- op tien fietsminuten van de Grote Markt, Zernike en het UMCG.
Over dit object
Overdracht
| Status | verkocht |
|---|---|
| Prijs | € 435.000 k.k. |
Bouw
| Bouwjaar | 2012 |
|---|---|
| Bouwvorm | bestaande bouw |
| Type Object | Woonhuis |
| Hoofdfunctie | Woonruimte |
Indeling
| Woonoppervlakte | 116 m² |
|---|---|
| Perceeloppervlakte | 283 m² |
| Woning Inhoud | 428 m³ |
| Kamers | 5 (4 slaapkamers) |
Energie
| Energielabel | A++ |
|---|
Buurtinformatie:
Groningen (2270 woningen met 3570 inwoners)
Koop woningen
12%
Huur woningen
87%
Leeftijdsopbouw
| Samenstelling Huishoudens | Groningen |
|---|---|
| Eenpersoons | 63% |
| Zonder kinderen | 19% |
| Met kinderen | 18% |
Refresh to make it work.



































































