Helper Brink 61 161
9722 EK GRONINGEN
€ 162.500 k.k.
Licht en verzorgd 2-kamerappartement gelegen in de rustige en groene wijk Coendersborg!
Dit fraaie appartement beschikt over een heerlijk lichte woonkamer met nette open keuken, een ruime slaapkamer, gebruik van een berging en een royaal balkon op het oosten met fraai uitzicht op onder meer park Groenestein. De sfeervolle "recreatiezaal" op de begane grond zorgt ervoor dat bewoners kunnen samenkomen voor een kop koffie, een spelletje of een gezellig praatje.
De ligging is uitstekend: op steenworp afstand van diverse winkels, supermarkten en sportvoorzieningen. De binnenstad bereik je in ongeveer 10 minuten fietsen en station Groningen Europapark ligt op nog geen 5 minuten fietsafstand.
INDELING
Begane grond:
Afgesloten portiek met intercom, trappenhuis en lift. Tevens een gezamenlijke en sfeervol ingerichte "recreatiezaal" met gezellige zithoeken, grote raampartijen en een biljarttafel.
Zevende verdieping:
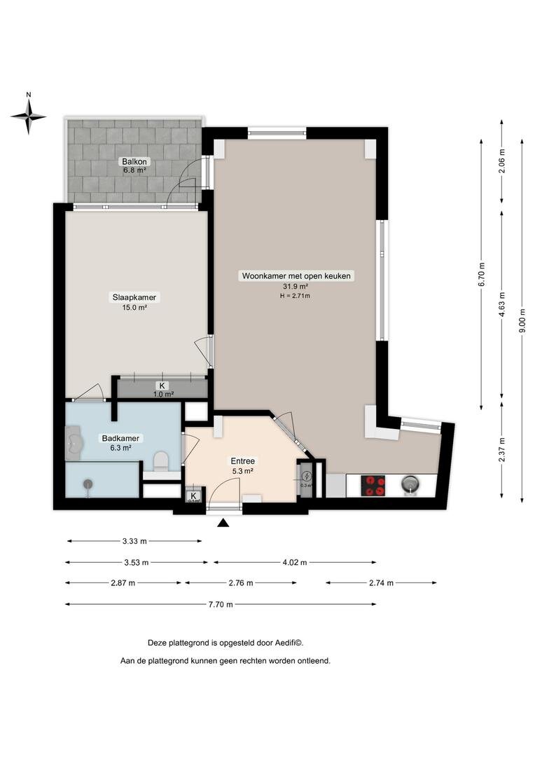
Entree/hal met meterkast en toegang tot de woonkamer en badkamer. Royale en lichte woonkamer van circa 32 m² voorzien van nette pvc vloer met moderne open keuken, uitgerust met diverse inbouwapparatuur zoals een inductieplaat, afzuigkap, koelkast, vriezer en combi-oven. Vanuit de woonkamer bereik je het balkon op het oosten, waar je heerlijk kunt genieten van de ochtendzon. Het balkon is eveneens vanuit de slaapkamer te bereiken. De woonkamer biedt tevens toegang tot de ruime slaapkamer (circa 15 m²) voorzien van nette pvc vloer, vaste kast en badkamer en suite. De badkamer (circa 6 m²) is voorzien van inloopdouche, wastafelmeubel, designradiator en toilet.
Bij het appartement hoort een gemeenschappelijke berging (circa 5 m²), gelegen op de zevende verdieping.
INFO
- Bouwjaar 1971;
- Energielabel B;
- Gezamenlijke "recreatiezaal";
- Prachtige locatie nabij park Groenestein en station Groningen Europapark;
- Fraai uitzicht;
- Royaal balkon op het oosten;
- Complex met lift;
- Gebruik van een berging op de 7e verdieping;
- Minimale leeftijd 55 jaar;
- Actieve VvE, bijdrage € 352,41 p.m.
Dit fraaie appartement beschikt over een heerlijk lichte woonkamer met nette open keuken, een ruime slaapkamer, gebruik van een berging en een royaal balkon op het oosten met fraai uitzicht op onder meer park Groenestein. De sfeervolle "recreatiezaal" op de begane grond zorgt ervoor dat bewoners kunnen samenkomen voor een kop koffie, een spelletje of een gezellig praatje.
De ligging is uitstekend: op steenworp afstand van diverse winkels, supermarkten en sportvoorzieningen. De binnenstad bereik je in ongeveer 10 minuten fietsen en station Groningen Europapark ligt op nog geen 5 minuten fietsafstand.
INDELING
Begane grond:
Afgesloten portiek met intercom, trappenhuis en lift. Tevens een gezamenlijke en sfeervol ingerichte "recreatiezaal" met gezellige zithoeken, grote raampartijen en een biljarttafel.
Zevende verdieping:
Entree/hal met meterkast en toegang tot de woonkamer en badkamer. Royale en lichte woonkamer van circa 32 m² voorzien van nette pvc vloer met moderne open keuken, uitgerust met diverse inbouwapparatuur zoals een inductieplaat, afzuigkap, koelkast, vriezer en combi-oven. Vanuit de woonkamer bereik je het balkon op het oosten, waar je heerlijk kunt genieten van de ochtendzon. Het balkon is eveneens vanuit de slaapkamer te bereiken. De woonkamer biedt tevens toegang tot de ruime slaapkamer (circa 15 m²) voorzien van nette pvc vloer, vaste kast en badkamer en suite. De badkamer (circa 6 m²) is voorzien van inloopdouche, wastafelmeubel, designradiator en toilet.
Bij het appartement hoort een gemeenschappelijke berging (circa 5 m²), gelegen op de zevende verdieping.
INFO
- Bouwjaar 1971;
- Energielabel B;
- Gezamenlijke "recreatiezaal";
- Prachtige locatie nabij park Groenestein en station Groningen Europapark;
- Fraai uitzicht;
- Royaal balkon op het oosten;
- Complex met lift;
- Gebruik van een berging op de 7e verdieping;
- Minimale leeftijd 55 jaar;
- Actieve VvE, bijdrage € 352,41 p.m.
Over dit object
Overdracht
| Status | verkocht onder voorbehoud |
|---|---|
| Prijs | € 162.500 k.k. |
Bouw
| Bouwjaar | 1971 |
|---|---|
| Bouwvorm | bestaande bouw |
| Type Object | Appartement |
| Hoofdfunctie | Woonruimte |
Indeling
| Woonoppervlakte | 65 m² |
|---|---|
| Woning Inhoud | 219 m³ |
| Kamers | 2 (1 slaapkamers) |
Energie
| Energielabel | B |
|---|
Buurtinformatie:
Groningen (475 woningen met 885 inwoners)
Koop woningen
54%
Huur woningen
46%
Leeftijdsopbouw
| Samenstelling Huishoudens | Groningen |
|---|---|
| Eenpersoons | 50% |
| Zonder kinderen | 31% |
| Met kinderen | 19% |
Refresh to make it work.














































