Gomarusstraat 15
9746 BC GRONINGEN
€ 389.000 k.k.
Gezinswoning met energielabel A en zonnige tuin op het zuidoosten!
Ben je op zoek naar een comfortabele woning met een prettige indeling en een fijne buitenruimte? Dan is deze onderhouden eengezinswoning aan de Gomarusstraat 15 de ideale woning. Met een woonoppervlakte van circa 105 m², drie slaapkamers, zonnepanelen en een energielabel A woon je hier comfortabel en dichtbij stadse voorzieningen.
De woning beschikt over een lichte en ruime woonkamer met toegang middels een schuifpui naar de tuin. De tuin is gelegen op het zuidoosten en dankzij de efficiënte indeling is de woning ideaal voor gezinnen of starters. De cv-installatie is van 2020, wat bijdraagt aan het wooncomfort en de lage energielasten.
INDELING
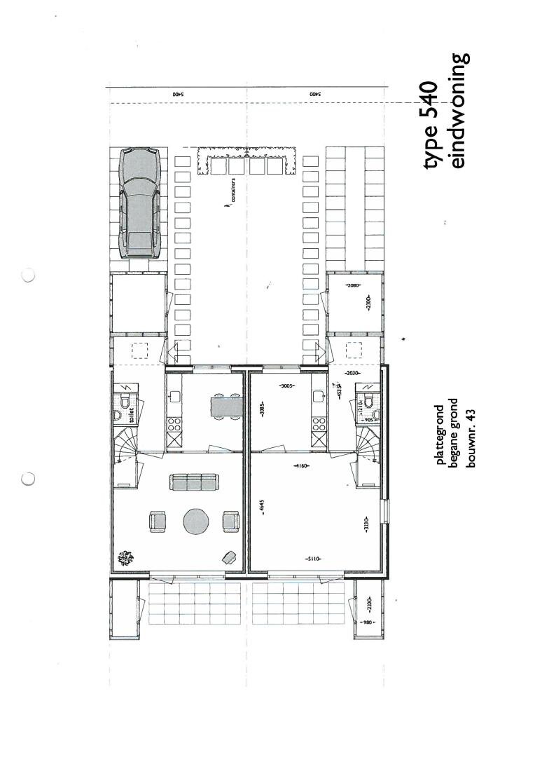
Begane grond:
Entree/hal met toegang tot het toilet met fonteintje, lichte woonkamer voorzien van ruime schuifpui en toegang tot de tuin op het zuidoosten. Vanuit de woonkamer heeft u toegang tot de keuken voorzien van enige inbouwapparatuur. Vanuit de hal heeft u vervolgens toegang tot de trapopgang naar de eerste verdieping.
Eerste verdieping:
Vanuit de overloop heeft u toegang tot 2 slaapkamers. Ook de badkamer vindt u op deze verdieping en is voorzien van een douche, bad, toilet en wastafelmeubel
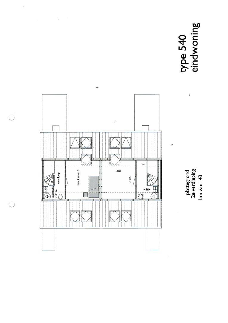
Zolder:
Middels een vaste trap bereikt u de tweede verdieping. Hier bevindt zich de derde slaapkamer en is de cv-opstelling gesitueerd (Intergas hre, 2020).
Informatie:
- Bouwjaar 2001;
- Energielabel A;
- 8 zonnepanelen;
- 3 slaapkamers;
- Verwarmd d.m.v. C.V.-ketel (Intergas bouwjaar. 2020)
- Ideale ligging ten opzichte van stadse voorzieningen.
Verkoopvoorwaarden van toepassing:
- projectnotaris van toepassing, Lambeck Scheepstra notarissen;
- de woning dient (de eerste 4 jaren) te worden gebruikt voor eigen bewoning door koper of voor bewoning van een eerstegraads familielid.
Ben je op zoek naar een comfortabele woning met een prettige indeling en een fijne buitenruimte? Dan is deze onderhouden eengezinswoning aan de Gomarusstraat 15 de ideale woning. Met een woonoppervlakte van circa 105 m², drie slaapkamers, zonnepanelen en een energielabel A woon je hier comfortabel en dichtbij stadse voorzieningen.
De woning beschikt over een lichte en ruime woonkamer met toegang middels een schuifpui naar de tuin. De tuin is gelegen op het zuidoosten en dankzij de efficiënte indeling is de woning ideaal voor gezinnen of starters. De cv-installatie is van 2020, wat bijdraagt aan het wooncomfort en de lage energielasten.
INDELING
Begane grond:
Entree/hal met toegang tot het toilet met fonteintje, lichte woonkamer voorzien van ruime schuifpui en toegang tot de tuin op het zuidoosten. Vanuit de woonkamer heeft u toegang tot de keuken voorzien van enige inbouwapparatuur. Vanuit de hal heeft u vervolgens toegang tot de trapopgang naar de eerste verdieping.
Eerste verdieping:
Vanuit de overloop heeft u toegang tot 2 slaapkamers. Ook de badkamer vindt u op deze verdieping en is voorzien van een douche, bad, toilet en wastafelmeubel
Zolder:
Middels een vaste trap bereikt u de tweede verdieping. Hier bevindt zich de derde slaapkamer en is de cv-opstelling gesitueerd (Intergas hre, 2020).
Informatie:
- Bouwjaar 2001;
- Energielabel A;
- 8 zonnepanelen;
- 3 slaapkamers;
- Verwarmd d.m.v. C.V.-ketel (Intergas bouwjaar. 2020)
- Ideale ligging ten opzichte van stadse voorzieningen.
Verkoopvoorwaarden van toepassing:
- projectnotaris van toepassing, Lambeck Scheepstra notarissen;
- de woning dient (de eerste 4 jaren) te worden gebruikt voor eigen bewoning door koper of voor bewoning van een eerstegraads familielid.
Over dit object
Overdracht
| Status | verkocht onder voorbehoud |
|---|---|
| Prijs | € 389.000 k.k. |
Bouw
| Bouwjaar | 2001 |
|---|---|
| Bouwvorm | bestaande bouw |
| Type Object | Woonhuis |
| Hoofdfunctie | Woonruimte |
Indeling
| Woonoppervlakte | 105 m² |
|---|---|
| Perceeloppervlakte | 249 m² |
| Woning Inhoud | 315 m³ |
| Kamers | 5 (3 slaapkamers) |
Energie
| Energielabel | A |
|---|
Buurtinformatie:
Groningen (1255 woningen met 3735 inwoners)
Koop woningen
85%
Huur woningen
15%
Leeftijdsopbouw
| Samenstelling Huishoudens | Groningen |
|---|---|
| Eenpersoons | 13% |
| Zonder kinderen | 25% |
| Met kinderen | 63% |
Refresh to make it work.




















































