De Driehoek
9613 GH Meerstad
€ 599.000 v.o.n.
DE DRIEHOEK: de laatste 3 levensloopbestendige woningen nabij het Woldmeer in de wijk De Zeilen (Meerstad).
KIJKDAG: woensdag 26 november van 12.30 tot 14.00 uur!
Benieuwd hoe jouw mogelijke toekomstbestendig wonen in Meerstad eruitziet? Je bent van harte welkom op de bouwplaats van De Driehoek. Tijdens dit speciale kijkmoment kun je al je vragen stellen aan de makelaar en ontwikkelaar én je mogelijke toekomstige buren te ontmoeten.
DE BOUW IS GESTART!
De woningen worden nu gebouwd en nu o.a. incl. uitbouw en 2e badkamer op de verdieping en keuken. Verwachte oplevering: 2e kwartaal 2026!
Klauwhoek 12 = De Driehoek bouwnummer 38
OMSCHRIJVING
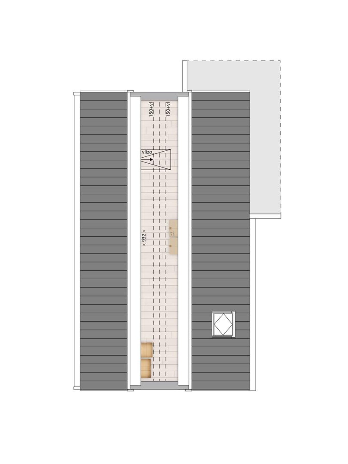
Deze prachtige levensloopbestendige woning van ca. 116 m2 in De Driehoek in woonwijk De Zeilen heeft een volledig woonprogramma op de begane grond.
Begane grond: via de entree aan de zijkant van de woning kom je in de ruime hal met toilet, berging en trapopgang. De woonkamer met open keuken is over de volle breedte en uitgebouwd met 1,20 meter. Deze heerlijke leefkeuken heeft dubbel openslaande deuren naar de achtertuin. Daarnaast is er een ruime slaapkamer met en suite badkamer in de aanbouw en tot slot een praktische berging/bijkeuken van 12m2.
Verdieping:
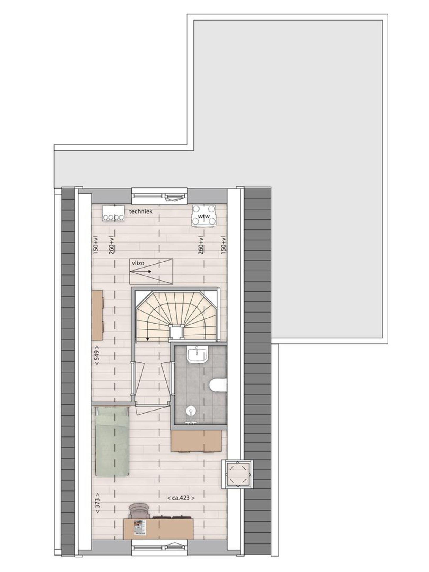
Ga je een trap omhoog dan kom je binnen op de overloop met deuren met toegang naar de 2 (slaap)kamers en 2e badkamer zodat je (klein)kinderen altijd kunnen blijven slapen of logeren. Of heb je altijd een eigen hobbykamer gewild? De ruimte is vrij in te vullen. Dit is je kans!
De woning beschikt over 2 eigen parkeerplaatsen, genoeg bergruimte en een ruime achtertuin. Ideaal om familie bezoek te ontvangen of om met het gezin te vertoeven. Daarnaast ligt het centrum van Groningen op fietsafstand, ideaal dus!
DUURZAAM EN COMFORTABEL WONEN
De woningen zijn natuurlijk perfect geïsoleerd en energiezuinig (energielabel A++++)
Deze comfortabele woningen zijn voorzien van zonnepanelen en een bodem-warmtepomp met vloerverwarming én vloerkoeling. Goed voor je portemonnee en het klimaat!
Deze fraaie nieuwbouwwoningen worden door de ontwikkelaar BPD zeer compleet uitgevoerd en opgeleverd, vaak zelfs inclusief een keuken. Desgewenst kun je via WoonGereed jouw gloednieuwe huis verhuisklaar afwerken en inrichten, tot en met de erfafscheiding en tuinaanleg aan toe.
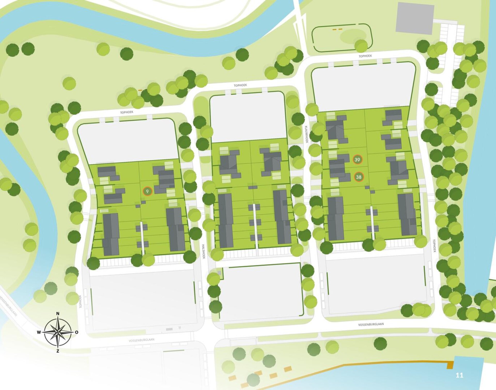
Zie ook bouwnummer 9 en 39 op de projectsite: nieuwbouw-dedriehoek.nl
Iets voor jou? Neem dan contact op met de makelaar voor een vrijblijvend gesprek.
KIJKDAG: woensdag 26 november van 12.30 tot 14.00 uur!
Benieuwd hoe jouw mogelijke toekomstbestendig wonen in Meerstad eruitziet? Je bent van harte welkom op de bouwplaats van De Driehoek. Tijdens dit speciale kijkmoment kun je al je vragen stellen aan de makelaar en ontwikkelaar én je mogelijke toekomstige buren te ontmoeten.
DE BOUW IS GESTART!
De woningen worden nu gebouwd en nu o.a. incl. uitbouw en 2e badkamer op de verdieping en keuken. Verwachte oplevering: 2e kwartaal 2026!
Klauwhoek 12 = De Driehoek bouwnummer 38
OMSCHRIJVING
Deze prachtige levensloopbestendige woning van ca. 116 m2 in De Driehoek in woonwijk De Zeilen heeft een volledig woonprogramma op de begane grond.
Begane grond: via de entree aan de zijkant van de woning kom je in de ruime hal met toilet, berging en trapopgang. De woonkamer met open keuken is over de volle breedte en uitgebouwd met 1,20 meter. Deze heerlijke leefkeuken heeft dubbel openslaande deuren naar de achtertuin. Daarnaast is er een ruime slaapkamer met en suite badkamer in de aanbouw en tot slot een praktische berging/bijkeuken van 12m2.
Verdieping:
Ga je een trap omhoog dan kom je binnen op de overloop met deuren met toegang naar de 2 (slaap)kamers en 2e badkamer zodat je (klein)kinderen altijd kunnen blijven slapen of logeren. Of heb je altijd een eigen hobbykamer gewild? De ruimte is vrij in te vullen. Dit is je kans!
De woning beschikt over 2 eigen parkeerplaatsen, genoeg bergruimte en een ruime achtertuin. Ideaal om familie bezoek te ontvangen of om met het gezin te vertoeven. Daarnaast ligt het centrum van Groningen op fietsafstand, ideaal dus!
DUURZAAM EN COMFORTABEL WONEN
De woningen zijn natuurlijk perfect geïsoleerd en energiezuinig (energielabel A++++)
Deze comfortabele woningen zijn voorzien van zonnepanelen en een bodem-warmtepomp met vloerverwarming én vloerkoeling. Goed voor je portemonnee en het klimaat!
Deze fraaie nieuwbouwwoningen worden door de ontwikkelaar BPD zeer compleet uitgevoerd en opgeleverd, vaak zelfs inclusief een keuken. Desgewenst kun je via WoonGereed jouw gloednieuwe huis verhuisklaar afwerken en inrichten, tot en met de erfafscheiding en tuinaanleg aan toe.
Zie ook bouwnummer 9 en 39 op de projectsite: nieuwbouw-dedriehoek.nl
Iets voor jou? Neem dan contact op met de makelaar voor een vrijblijvend gesprek.
Over dit object
Overdracht
| Status | beschikbaar |
|---|---|
| Prijs | € 599.000 v.o.n. |
| Aantal Kavels | 3 |
Bouw
| Bouwvorm | nieuwbouw |
|---|
Indeling
| Woonoppervlakte | van 116 tot 123 m² |
|---|---|
| Perceeloppervlakte | 245 m² |
Volg dit project
Benieuwd naar dit project? Schrijf u in op de nieuwsbrief van De Driehoek!
Buurtinformatie:
Slochteren (195 woningen met 490 inwoners)
Koop woningen
74%
Huur woningen
25%
Leeftijdsopbouw
| Samenstelling Huishoudens | Slochteren |
|---|---|
| Eenpersoons | 23% |
| Zonder kinderen | 33% |
| Met kinderen | 45% |
Refresh to make it work.














