Paterswoldseweg 439
9728 AN GRONINGEN
€ 239.500 k.k.
Licht en praktisch wonen aan de Paterswoldseweg 439!
Op zoek naar een fijn appartement met een goede basis en een prettige lichtinval? Dan is dit appartement aan de Paterswoldseweg 439 zeker het bekijken waard. Met een woonoppervlakte van circa 71 m², twee balkons en een energielabel C is dit een comfortabele woning met volop mogelijkheden.
De woning beschikt over een lichte woonkamer en dankzij de kunststof kozijnen is het onderhoud bovendien beperkt. De indeling is praktisch en biedt voldoende ruimte om de woning geheel naar eigen smaak in te richten.
INDELING:
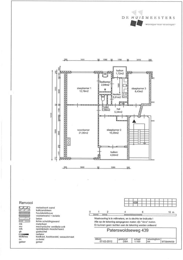
Begane grond:
Afgesloten portiek met intercom, trapopgang en toegang tot de inpandige bergingen in het souterrain.
Tweede verdieping:
Entree/hal met toegang tot twee slaapkamers, respectievelijk te weten circa 10 m² en 8m². Dichte keuken (ca. 5 m²) voorzien van keukenblok en toegang tot de badkamer (ca. 2 m²). De badkamer is voorzien van een wastafel, douche en de cv-ketel. De badkamer is vanuit de keuken te bereiken. De woonkamer (ca. 21 m²) biedt een open aanzicht en toegang tot de eetkamer (ca. 13 m²). Deze ruimte is eenvoudig om te zetten naar een derde slaapkamer. Vanuit de grootste slaapkamer heeft u toegang tot het balkon (ca. 4m²) aan de voorzijde.
Informatie:
- bouwjaar 1959;
- energielabel C;
- cv-verwarming, bouwjaar 2021;
- goede locatie met voorzieningen dichtbij;
- complex verduurzaamd middels kunststof kozijnen;
- actieve Vve, bijdrage €103,99 p/mnd.
Verkoopvoorwaarden van toepassing o.a.:
- Projectnotaris (Lambeck Scheepstra) van toepassing;
- Niet-zelfbewoningsclausule;
- De woning dient de eerste 4 jaar na de eigendomsoverdracht te worden bewoond door de eigenaar of een eerstegraads familielid. Daarna verhuur enkel mogelijk met toestemming van de VVE.
Op zoek naar een fijn appartement met een goede basis en een prettige lichtinval? Dan is dit appartement aan de Paterswoldseweg 439 zeker het bekijken waard. Met een woonoppervlakte van circa 71 m², twee balkons en een energielabel C is dit een comfortabele woning met volop mogelijkheden.
De woning beschikt over een lichte woonkamer en dankzij de kunststof kozijnen is het onderhoud bovendien beperkt. De indeling is praktisch en biedt voldoende ruimte om de woning geheel naar eigen smaak in te richten.
INDELING:
Begane grond:
Afgesloten portiek met intercom, trapopgang en toegang tot de inpandige bergingen in het souterrain.
Tweede verdieping:
Entree/hal met toegang tot twee slaapkamers, respectievelijk te weten circa 10 m² en 8m². Dichte keuken (ca. 5 m²) voorzien van keukenblok en toegang tot de badkamer (ca. 2 m²). De badkamer is voorzien van een wastafel, douche en de cv-ketel. De badkamer is vanuit de keuken te bereiken. De woonkamer (ca. 21 m²) biedt een open aanzicht en toegang tot de eetkamer (ca. 13 m²). Deze ruimte is eenvoudig om te zetten naar een derde slaapkamer. Vanuit de grootste slaapkamer heeft u toegang tot het balkon (ca. 4m²) aan de voorzijde.
Informatie:
- bouwjaar 1959;
- energielabel C;
- cv-verwarming, bouwjaar 2021;
- goede locatie met voorzieningen dichtbij;
- complex verduurzaamd middels kunststof kozijnen;
- actieve Vve, bijdrage €103,99 p/mnd.
Verkoopvoorwaarden van toepassing o.a.:
- Projectnotaris (Lambeck Scheepstra) van toepassing;
- Niet-zelfbewoningsclausule;
- De woning dient de eerste 4 jaar na de eigendomsoverdracht te worden bewoond door de eigenaar of een eerstegraads familielid. Daarna verhuur enkel mogelijk met toestemming van de VVE.
Over dit object
Overdracht
| Status | beschikbaar |
|---|---|
| Prijs | € 239.500 k.k. |
Bouw
| Bouwjaar | 1959 |
|---|---|
| Bouwvorm | bestaande bouw |
| Type Object | Appartement |
| Hoofdfunctie | Woonruimte |
Indeling
| Woonoppervlakte | 71 m² |
|---|---|
| Woning Inhoud | 213 m³ |
| Kamers | 4 (3 slaapkamers) |
Energie
| Energielabel | C |
|---|
Buurtinformatie:
Groningen (2660 woningen met 4600 inwoners)
Koop woningen
29%
Huur woningen
70%
Leeftijdsopbouw
| Samenstelling Huishoudens | Groningen |
|---|---|
| Eenpersoons | 58% |
| Zonder kinderen | 25% |
| Met kinderen | 17% |
Refresh to make it work.





































